Flaunting a predominantly industrial-inspired design complemented by transparent elements and well-defined volumes, Mackay Terrace is an impressive house that was completed in 2014 by Shaun Lockyer Architects. The 4,305-square foot residence can be found in Bardon QLD, Australia, and it features a direct relationship to its outdoor spaces thanks to large windows and sliding doors.
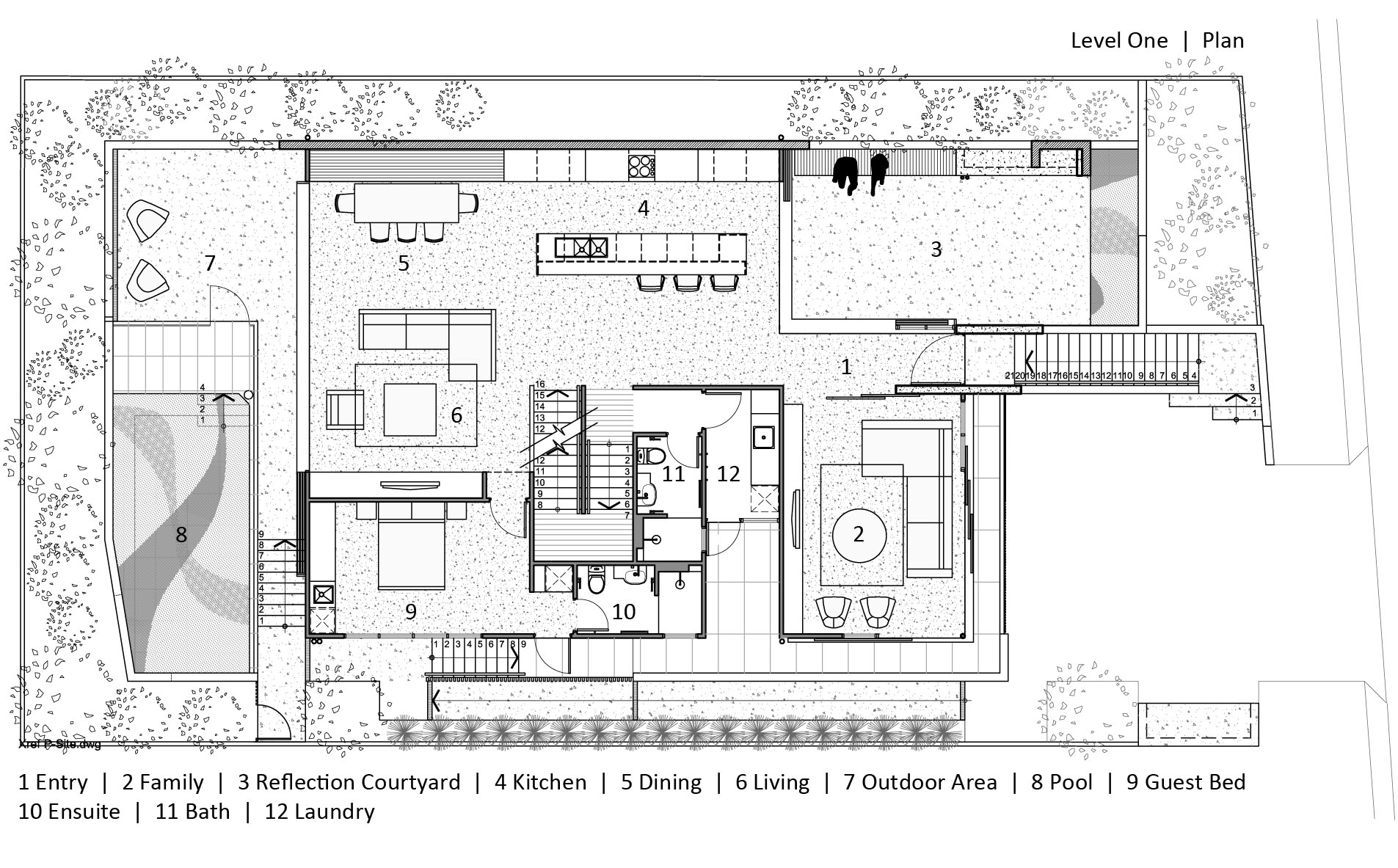
These elements also bring ample natural light throughout the living spaces, which is always a welcomed addition. Outside, there is a fireplace and a water feature that form a cozy relaxation spot, from which the owners and their guests can admire beautiful views of the city. The house boasts three levels in total, and the first includes a family room, a reflection courtyard, a dining area, the kitchen, the living room and a swimming pool. The second floor incorporates the master bedroom and a study, while the ground level is where the garage and the storage facilities can be found.
From the architect:
Mackay Terrace is a progressive, contemporary reinterpretation of character vernacular architecture situated on a steep, inner-city Brisbane site.
The house explores an industrial aesthetic along with ideas of transparency and volume to creatively articulate the living spaces and interrelationship between inside and out.
An outdoor fireplace and water features provide an unexpected punctuation of the house from which panoramic district views can be enjoyed.
Project Architects: Shaun Lockyer, Jennifer Negline
Area: 400.0 sqm
Year: 2014
Photographs: Scott Burrows Photography















More Similar Articles Like This
Marvelous Anantara Dhigu Resort
Wonderful Yachting Club Villas at Elounda Beach by Davide Macullo Architects
Plain Geometric Residence Designed by Lidija Dragisic
Spectacular Rooftop Apartment by Innocad
Heavenly Lily Beach Resort & Spa In Huvahendhoo, Maldives
The Sophisticated Casa Villa Flamingo in Spain
Extraordinary Constance Halaveli Maldives Resort
Behr’s Brilliant Blues: 70 Shades of Stunning Paint Colors