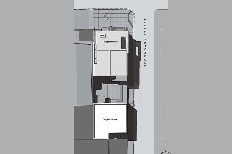
Designed by SB Architects, a San Francisco-based studio, the Bernal Heights Residence is an outstanding contemporary residence, built on a site that used to hold only a small residence (originally built in 1931) with one story, one bedroom and a two-car garage. Located in Bernal Heights, a neighborhood in San Francisco, California, the new building takes full advantage of the available views, even though its design was somewhat restricted by the local traditional San Francisco neighborhood code.
The original 550-square-foot house was modified, but it remained a separate residential unit within the lot. A new house was built in front of the old one, with three levels connected by a central focal staircase. Above the stairs a strategically-positioned skylight allows natural light to flood the house and make it more inviting and warm.
Natural light also plays an important part in keeping this residence as nature-friendly as possible. More sun light means less electricity consumption. Other sustainable features include a 2.5-kilowatt photovoltaic system, a 95% efficient gas boiler that ensures hydronic heating and domestic hot water, water efficient plumbing fixtures, and star appliances. This home is actually 35% more efficient than California Title 24 requirements.
Photos by: Bruce Damonte












More Similar Articles Like This
The Superb Maradiva Villas Resort & Spa in Mauritius
5 Ways to Turn Your Yard Into a Fancy Space
Amazing Four Seasons Resort Bora Bora
Shadowed Depths: Vintage-inspired Paint Colors for Dark Basements
Opulent Mandarin Oriental Hotel in Paris
Stunning Sustainable Home in Costa Rica by SPG Architects
Green Gables Home In Fairfield, Connecticut, United States
Beautiful Apartment in Stockholm for $1 Million