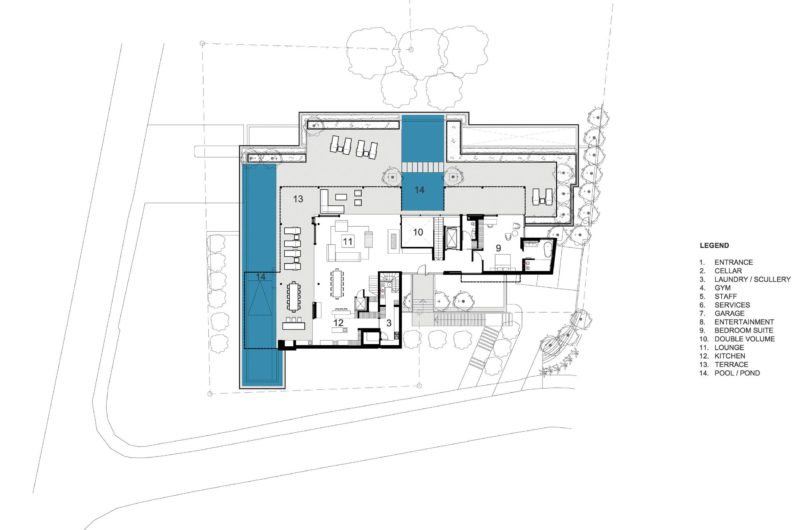
The Plett 6541+2 residence is a fabulous project completed by the Cape Town-based studio SAOTA-Stefani Antoni Olmesdahl Truen Architects in 2010, being located in the coastal town of Plettenberg Bayon the amazing Garden Route, South Africa.
This estate is a three story modern house which lies out before an amazing seafront and that’s not the only incredible view provided because mountains have a big contribution along with the entire spectacular green nature surrounding the entire property. This amazing home was designedwith South West/North East orientations in order for the owners to enjoyjust the outdoor beauty eliminating the risk of being affected by the extremes of climate. It may seem pretty simple at a first view but in fact all the attention given to details made this estate convert into a dream home.
Its harmonious interior gives one a chance to relax and get away from every-day problems. If you’re thinking about buying a house like this one, you certainly know that it’s a safe investment to make.









More Similar Articles Like This
Plain Geometric Residence Designed by Lidija Dragisic
These Top Tips Will Help You to Turn Your Garden into the Ultimate Glamping Site!
Exceptional Coronado Bay Front Estate in California
Contemporary BO House In Envigado, Antioquia, Colombia
Secluded Naladhu Island in Maldives
Spectacular Luxury House in Sarasota, Florida by DSDG Inc. Architects
Dreamy Oceanfront Chateau In West Vancouver, Canada
Boracay Resort & Spa in the Fascinating Philippines