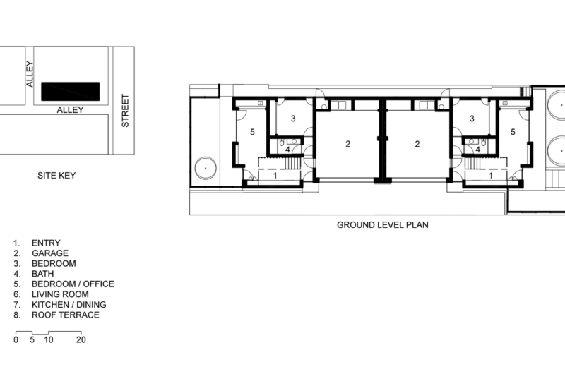
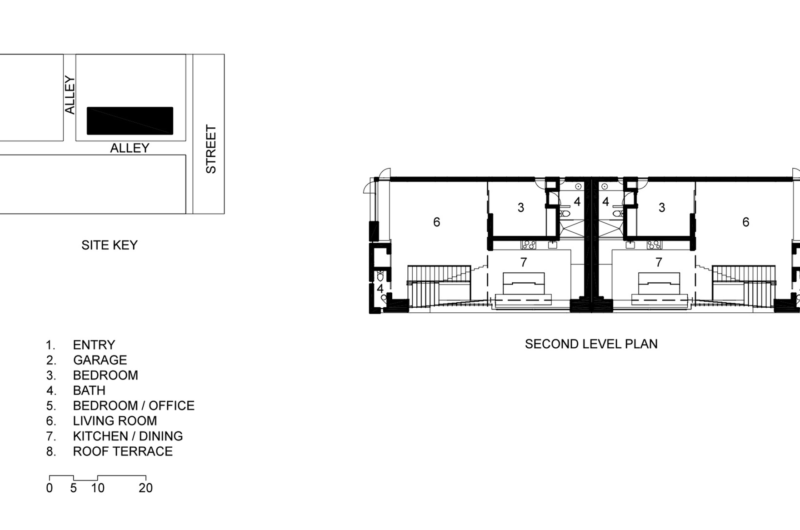
The Dual House is a well lit and comfortable residence that can be found in Venice, Los Angeles, California. It was designed by Dimster Architecture and was completed in 2012 with elegance and modernism in mind. As its name suggests, the Dual House offers accommodation options for 2 separate families.
Even though it appears to be a single building, the residence is actually comprised of 2 structures placed back-to-back. The lower level of the abode includes the bedrooms, the entryway and the garage, while the second floor features the living room and the kitchen, which is why it boasts large windows and open spaces. The staircase leading to the second floor looks like a true work of art with its suspended steel steps that appear to be floating.
Other highlights consist of a built-in banquette and a table with enough seating for 12, a rooftop garden, and colorful décor elements in the form of paintings and natural plants.















More Similar Articles Like This
Seamlessly Apartment by the Beach by ZZ Architects
Lovelli Residence: Mediterranean-Style Dwelling in Bali
Outstanding Bodrum Houses in Yalikavak, Turkey
Opulent Mandarin Oriental Hotel in Paris
Wonderful Yachting Club Villas at Elounda Beach by Davide Macullo Architects
Unique Click Clack Hotel In Bogota, Colombia
A Superb Italianate Mansion in California, USA
6 Garden and Lawn Tips to Get Ready for Spring