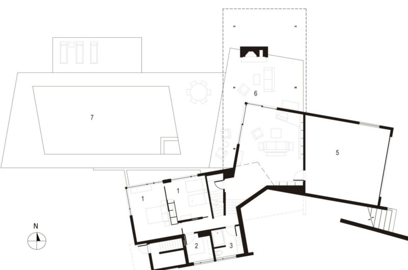
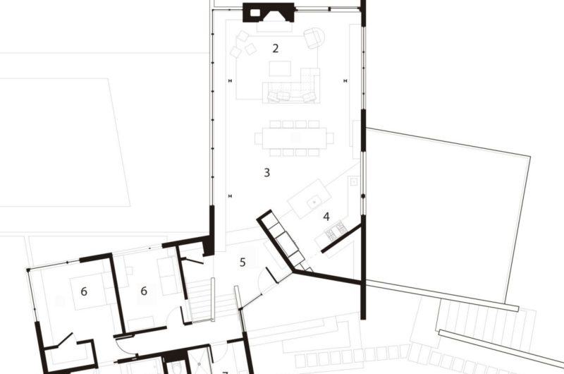
The Bluff House designed by Robert Young gets its name because it is perched on a bluff overlooking the Block Island Sound. It is surrounded on three sides by water, wetlands and woods.
The client’s demands were consisting in minimal impact on the pristine landscape, the chance of capturing as much view and everything a house needs in order to host people all year long.
Due to its orientation and the wall-to-ceiling glass windows, it captures a lot of light from the sun all day long, in the same time keeping the interior warm during the night.
Photos by Michael Moran






















More Similar Articles Like This
Extraordinary Constance Halaveli Maldives Resort
Amazing Four Seasons Resort Bora Bora
Lovelli Residence: Mediterranean-Style Dwelling in Bali
Unique Click Clack Hotel In Bogota, Colombia
Tips for Choosing the Right Blue Paint Color for Your Dining Room
Stunning Sustainable Home in Costa Rica by SPG Architects
70 Shades of Green: Benjamin Moore’s Vibrant Paint Colors
Seamlessly Apartment by the Beach by ZZ Architects