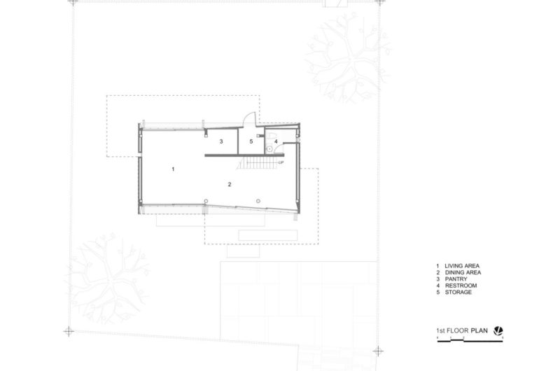
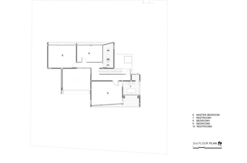
If the client wants something then he should better receive it. In this case, the owner wanted his home to express his character regarding space and form. IDIN Architects who designed the W House managed to discover their clients wish and started from his passion for travelling and kayaking. A very helpful element was a picture of a boat sailing on the river. The whole house was built round this idea, so even the bedrooms seem to be like a boat supported underneath by the river for sailing.
The orientation of the building was determined by the wind and sun direction. Because it has large glass windows, the wooden shutter covering the house brings its contribution in shading the light and creating privacy when needed.
The W House in Nakhon Ratchasima, Thailand is a residence built with passion for passion.
Photos by Spaceshift Studio






























More Similar Articles Like This
10 Different Types of Blue Paint Colors
The Superb Maradiva Villas Resort & Spa in Mauritius
Boracay Resort & Spa in the Fascinating Philippines
Outstanding Bodrum Houses in Yalikavak, Turkey
Behr’s Brilliant Blues: 70 Shades of Stunning Paint Colors
Amazing Four Seasons Resort Bora Bora
Lovelli Residence: Mediterranean-Style Dwelling in Bali
Santa Barbara Style Home in Paradise Valley, Phoenix