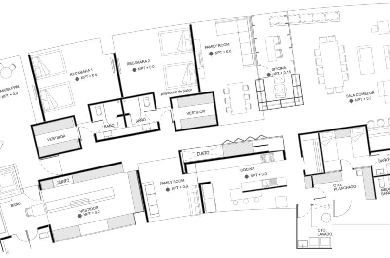
P-901 is a private residence located in Bosque de Las Lomas, in Mexico City, Mexico, which was completed by Craft Arquitectos in 2012. The house covers an area of 2530 square feet and is based on the integration of movement spaces heights, materials and lighting.
There is a perfect mix between the light, plasticity and functionality, which are in perfect balance with the materials used, such as wood, glass, stone and steel.
The marble flooring gives the dwelling a touch of elegance and preciousness, creating in the same time a sophisticated environment.
The wooden details and the diffuse lighting turn this residence into a perfect home, where all the worries and the tension disappear when you enter the front door.

























More Similar Articles Like This
Dreamy Oceanfront Chateau In West Vancouver, Canada
The Sophisticated Casa Villa Flamingo in Spain
Lawn Care Tips, The Basics For Each SeasonÂ
Exceptional Coronado Bay Front Estate in California
Marvelous Anantara Dhigu Resort
A Superb Italianate Mansion in California, USA
Opulent Mandarin Oriental Hotel in Paris
The Superb Villa Verai on Phuket Island, Thailand