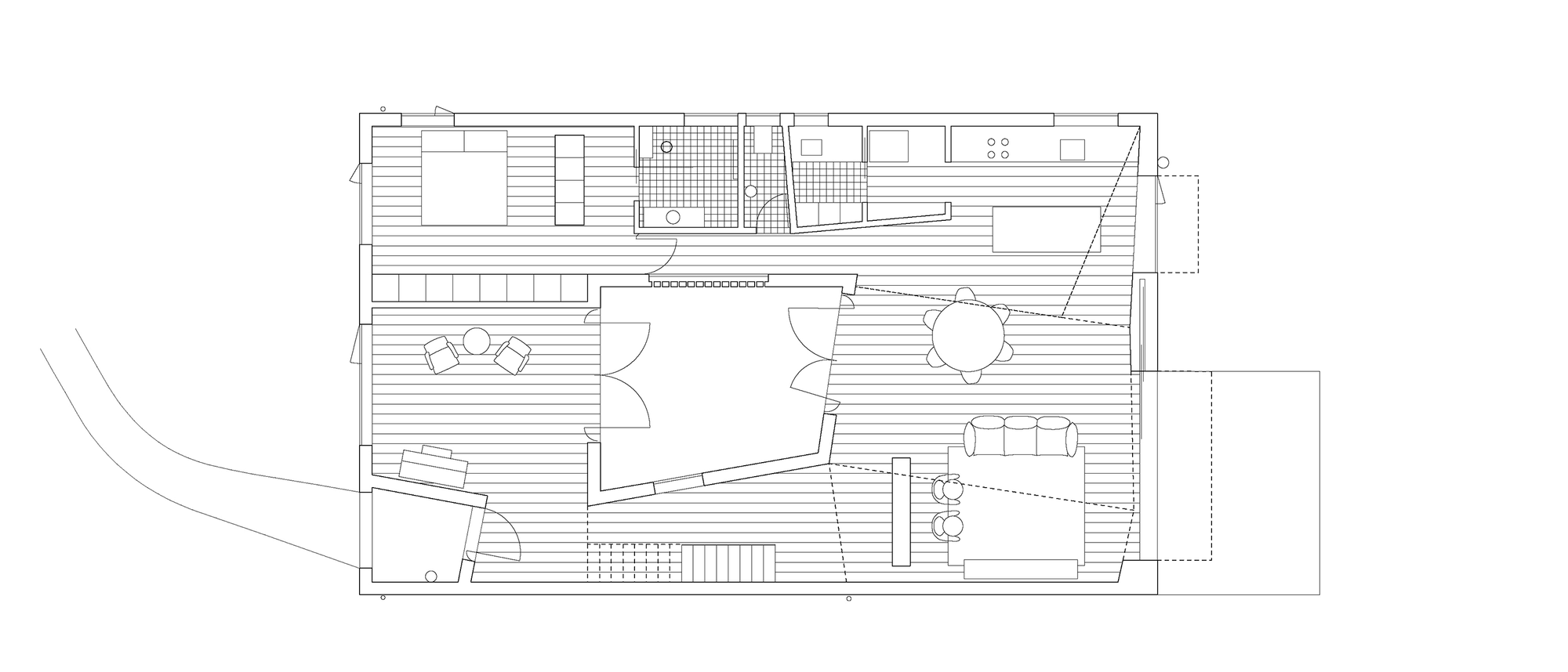
This modern courtyard house was built in 2013 for a young family with children in Riverview, Sydney, Australia. It was designed by Bennett and Trimble and provides impressive living conditions and great entertainment opportunities even though it is not particularly spacious. Its roof is deformed at one corner in order to allow natural light to reach the southern rooms and the courtyard.
Speaking of the courtyard, it connects the living spaces on the ground floor while providing direct views of the street and back garden. Since this is a family with children, it makes sense that the abode would include a special place for them to play in. The playroom is found directly above the kitchen and dining room, which means that it is separated from the main living areas while still being within easy reach.
The façade boasts a special brickwork pattern complemented by plate steel sun shades.
Photos by Peter Bennetts














More Similar Articles Like This
Beach House CN – A Superb Contemporary Home in Peru
Exquisite Crossacres Mansion In Surrey, England
6 Garden and Lawn Tips to Get Ready for Spring
Pure Perfection: Discover the Top White Paint Colors for a Flawless Décor
Spectacular Rooftop Apartment by Innocad
Spectacular Luxury House in Sarasota, Florida by DSDG Inc. Architects
Gorgeous And Spacious Home In Sunset Strip
Stunning Banyan Tree Ungasan Bali in Indonesia