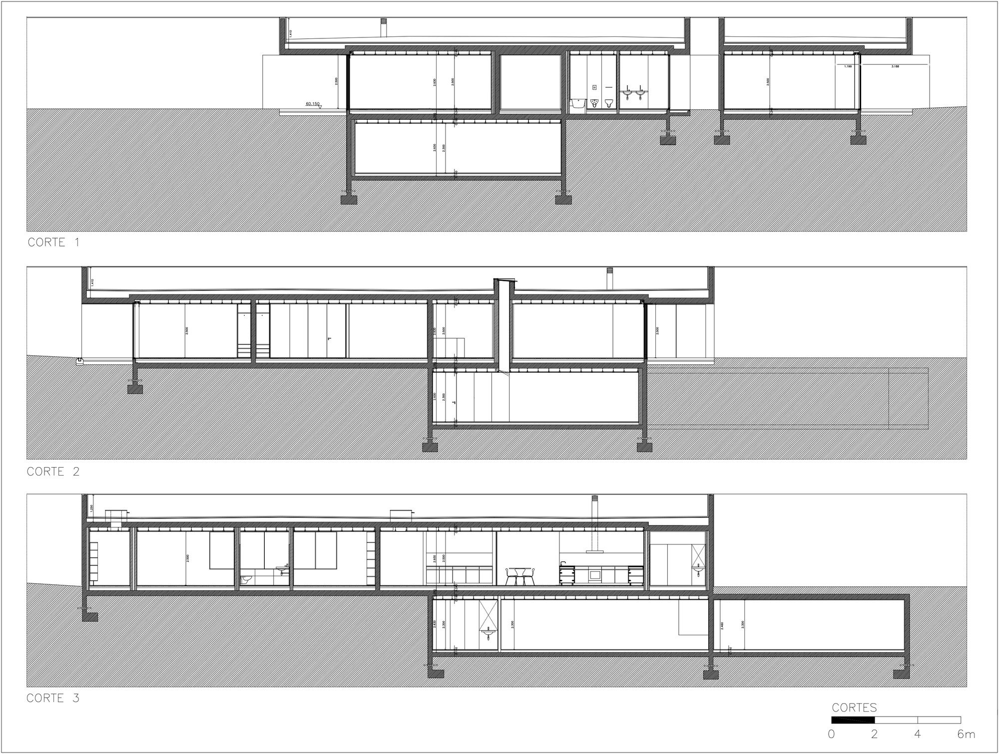
Completed in 2007 by Eduardo Souto de Moura, this modern residence is located in Maia, Portugal and was built on two lots that feature a difference of 22 feet between their ends. The living rooms are orientated towards the west, while the bedrooms are located on the eastern side of the lot. Underneath the main volumes, there is a basement that incorporates a porch a swimming pool and a mechanical room.
The property impresses with two patios and two gardens that feature varying designs. The bedrooms facing the east benefit from access to a private oriental garden, while the living rooms to the west face a long garden with North Oaks. Minimalistic yet welcoming and luxurious, this home in Maia offers more than adequate living conditions for a small family or a single owner.
From the architect:
The house develops on two lots with a difference of seven meters between the ends. Between two volumes, the program is: bedrooms to the east and living rooms to the west. Below, is a basement with a porch used as a garage, a pool and the mechanical room.
The house has two patios, two gardens with different geographies: to the east, the bedrooms, the more intimate area with a tranquil oriental garden that provides the necessary light. To the west a long garden with North Oaks, with a pool where a window lets you see the industrial outskirts and the metro passing.
When reality, even without interests, is framed with conviction, it can acquire a favorite status (or isn’t it true that the greatest misery such as trash and war, have given the greatest photographs…)
Architects: Eduardo Souto de Moura
Location: Maia, Portugal
Project Architect: Eduardo Souto de Moura
Collaborators: Luís Peixoto, Susana Meirinhos
Project Year: 2007
Photographs: Luis Ferreira Alves
Structural Engineer: Afaconsult – Engº Rui Furtado, Engº Miguel Paula Rocha
Electrical: Afaconsult – Engº Raul Serafim
Mechanical: Afaconsult – Engª Isabel Sarmento
Plumbing: Afaconsult – Engº Paulo Silva
Exteriors: Engº Manuel Pedro Melo
Construction: Matriz
Client: Fernando Dias
















More Similar Articles Like This
Best paint colors for the living room
Exceptional Coronado Bay Front Estate in California
10 Different Types of Blue Paint Colors
Plain Geometric Residence Designed by Lidija Dragisic
Heavenly Lily Beach Resort & Spa In Huvahendhoo, Maldives
Lawn Care Tips, The Basics For Each Season
Loving Luxury at Mardan Palace Resort, Turkey
Vibrant Concrete Floor Paint Colors to Elevate Your Space