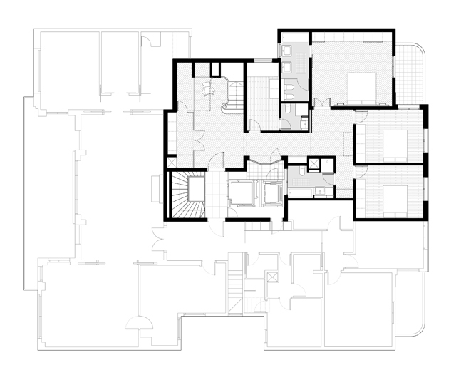
The interior restoration of an Attic Duplex in Barcelona, Spain was made by Cavaa Arquitectes. This project started by dividing a big duplex into two dwellings adapted to a family’s needs. The idea was to achieve recuperation of generous space without losing its previous characteristic of a superior dwelling. There were conserved elements that brought richness to the old space and added new architectural details in order to maintain a good dialogue between the new forms of living and the inheritance.
The home was remodeled in a way that could gather two houses: the first one set on the first floor with a studio taking advantage of the terrace and the second one which is organizedon two floors with the south-orientated terrace on the top floor.
Adopting natural light was a clear purpose from the very beginning that’s why in spaces of more difficult light were created skylights in order to favor an exchange of sensations.
Photos by Filippo Poli


















More Similar Articles Like This
Seamlessly Apartment by the Beach by ZZ Architects
How Seattle Lawn Care Service Deals With Overgrown Lawns
Exquisite Crossacres Mansion In Surrey, England
Pure Perfection: Discover the Top White Paint Colors for a Flawless Décor
Saguaro Palm Springs by Joie de Vivre
10 Different Types of Blue Paint Colors
Best paint colors for the living room
Benjamin Moore Exterior Paint: Vibrant Shades for a Striking Home