This simple yet comfortable and modern house was dubbed Bambou Pavillion, and it was built in Assinie-Mafia, Ivory Coast by Koffi & Diabaté Architectes. Based on the principle of “less is more” the residence offers 1,722 square feet of space and blends beautifully in its environment. One of the most eye-catching features of the project comes in the form of a bamboo house fence, and we should also mention the sliding glass doors that allow the abode to open up completely to the outdoors.
This house is but one of many that are scheduled to be built in Assinie-Mafia courtesy of Koffi & Diabaté Architectes. Its interiors are minimalistic, beautifully furnished and scarcely decorated as the gorgeous palm trees located outdoors offer plenty to look at. The residence also comprises an outdoor deck with a large swimming pool that can be used for socialization, relaxation and entertainment.
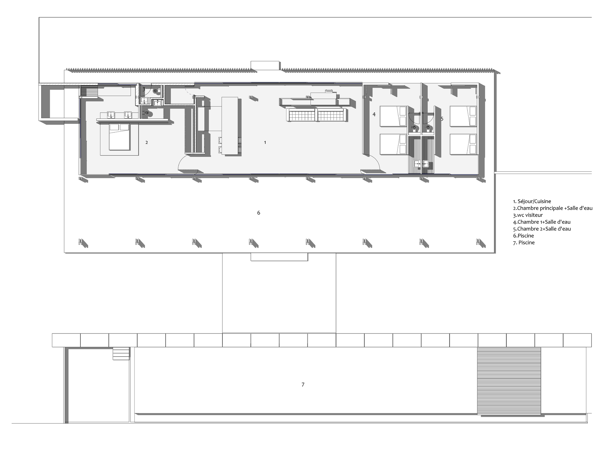
From the architect:
Light, space, air… Those are some of the keywords behind the design inspiration for this project. A true representation of our “less is more” approach, with the Bambou Pavilion, our aim was to create a house that blended with the environment, all the while being resolutely modern.
Key features of this pavilion are the use of bamboo from Assinie-Mafia for the house fence and the fact that the house can become a true open space, due to the integration of glass slide doors (as opposed to brick walls) used as walls all around the house.
Our works in the coastal city of Assinie-Mafia, Côte d’Ivoire, are part of a large urban landscaping project by Koffi & Diabaté Architectes (currently in progress) centered on the development of an eco-friendly city where notions of sustainable development are fully integrated in building design concepts and a new “coastal” aesthetic is being introduced, locally.
Location: Assinie-Mafia, Côte d’Ivoire
Architect In Charge: Issa Diabaté
Site Area: 2700 m2
Area: 160.0 sqm
Year: 2012
Photographs: François-Xavier Gbré

















More Similar Articles Like This
Superb Luxury Penthouse in Portomaso, Malta
Opulent Mandarin Oriental Hotel in Paris
Stunning Banyan Tree Ungasan Bali in Indonesia
The JKC1 House in Bukit Timah, Singapore
Heavenly Lily Beach Resort & Spa In Huvahendhoo, Maldives
Shadowed Depths: Vintage-inspired Paint Colors for Dark Basements
A Superb Italianate Mansion in California, USA
Beach House CN – A Superb Contemporary Home in Peru