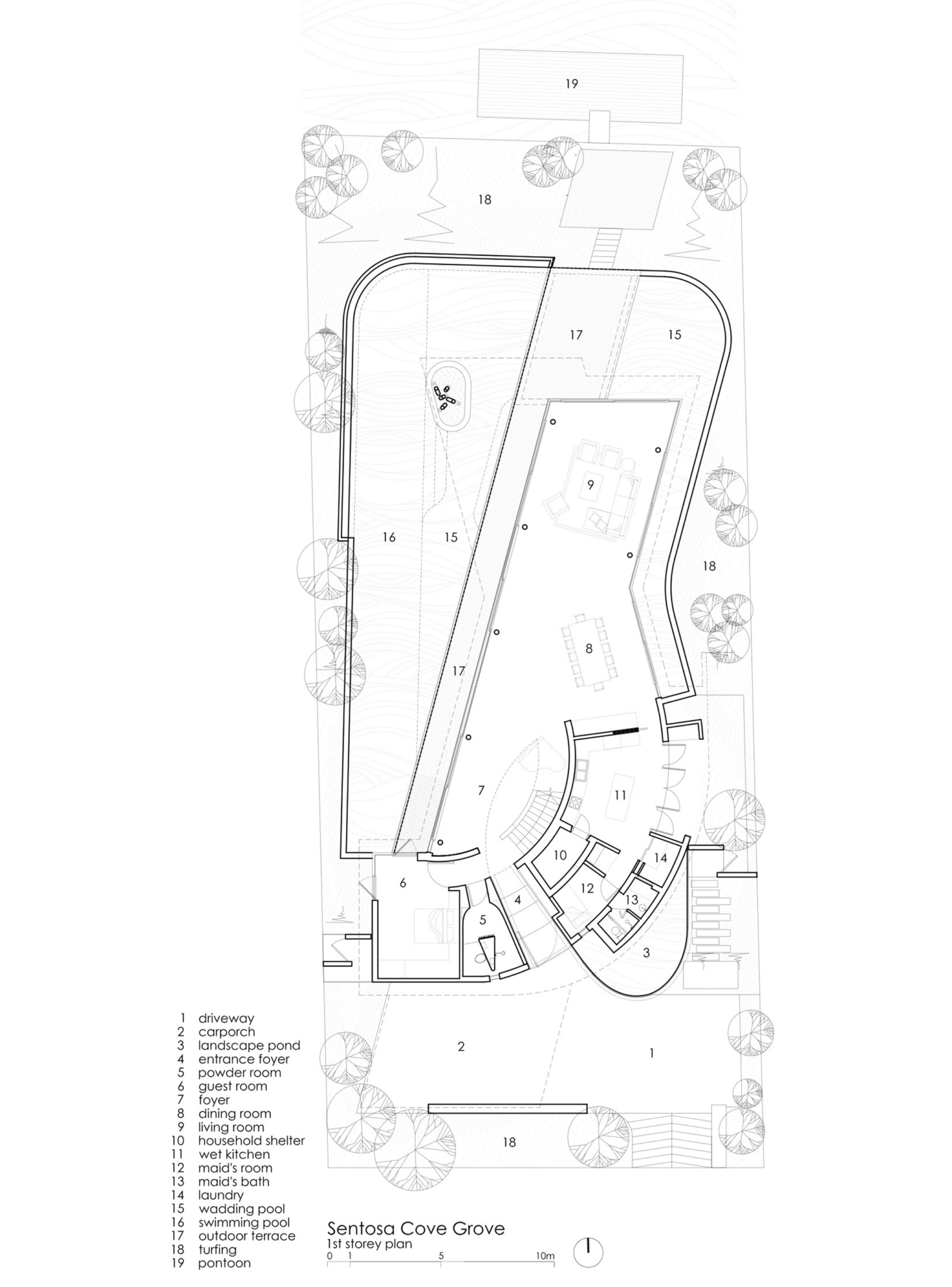
The residence you can admire in the images was designed by Aamer Architects and built in 2011 in Jalan Sentosa, Singapore. Boasting approximately 9300 square feet of living space and 3 floors, the home provides irreproachable living conditions for its lucky owners, but the outdoor arrangements of the residence are arguably even more impressive.
Naturally, the narrow and long site upon which the home was built caused certain difficulties for the architects in charge of this amazing project, but Aamer’s experts eventually managed to surpass all impediments. The home boasts a boomerang-like curvature that allows all of its bedrooms to benefit from the splendid views of the waterfront, but this unique shape also allowed for an 82-foot lap pool to be incorporated into the ground level.
The first storey of the home comprises the dining and living areas, while the second floor includes the lavishly appointed bedrooms and bathrooms. The third floor was designed to act as a study and home office that would provide adequate working conditions for the clients. This special part of the house also boasts a remarkable contemplative roof garden that gives off a sense of tranquility and peace.

















More Similar Articles Like This
Spectacular Rooftop Apartment by Innocad
The JKC1 House in Bukit Timah, Singapore
Beautiful Apartment in Stockholm for $1 Million
Green Gables Home In Fairfield, Connecticut, United States
6 Garden and Lawn Tips to Get Ready for Spring
Lawn Care Tips, The Basics For Each SeasonÂ
Outstanding Bodrum Houses in Yalikavak, Turkey
Astonishing El Tovar by the Sea