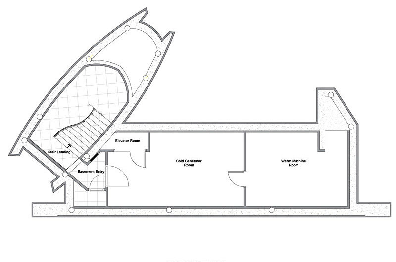
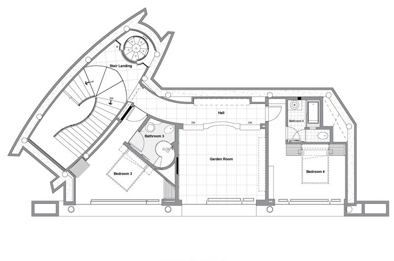
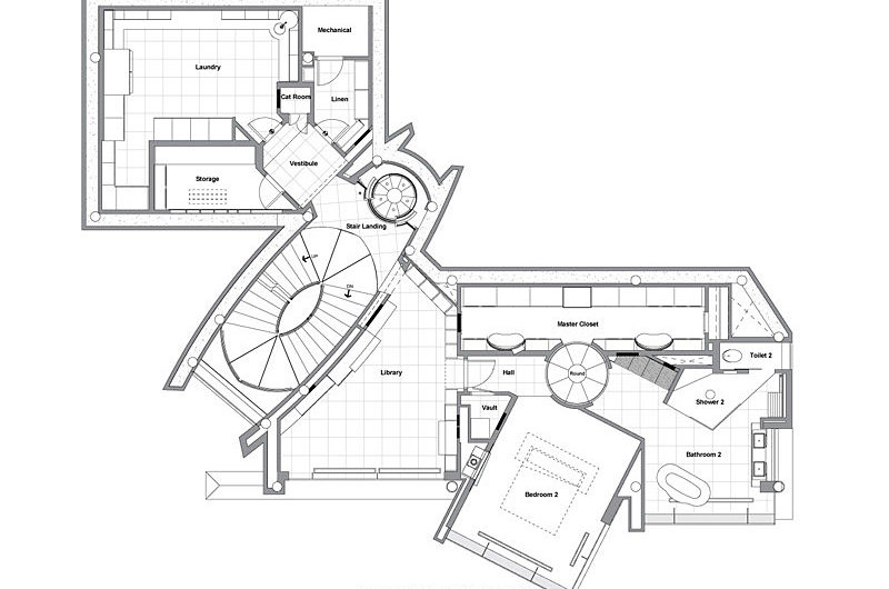
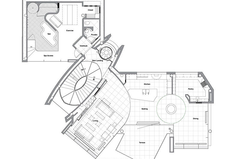
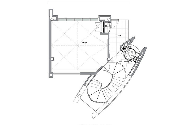
The Cliff House is a spectacular contemporary residence designed by Mark Dziewulski Architect, and located in Incline Village, Crystal Bay, Nevada. The owners called it The Lake House, because it overlooks the beautiful Lake Tahoe.
The architects completed the project in 2010, after almost four years of work. They chose concrete, steel and glass as main materials for this project. The result was a beautiful five-story contemporary residence with four bedrooms and bathrooms, a dramatic six-level glass stairwell, a glass lift, and numerous luxury amenities throughout. The Cliff House also has its own private pier.
Buy it now!


















































More Similar Articles Like This
5 Ways to Turn Your Yard Into a Fancy Space
Behr’s Brilliant Blues: 70 Shades of Stunning Paint Colors
Loving Luxury at Mardan Palace Resort, Turkey
Exquisite Crossacres Mansion In Surrey, England
Marvelous Anantara Dhigu Resort
Seamlessly Apartment by the Beach by ZZ Architects
Benjamin Moore Exterior Paint: Vibrant Shades for a Striking Home
Best paint colors for the living room