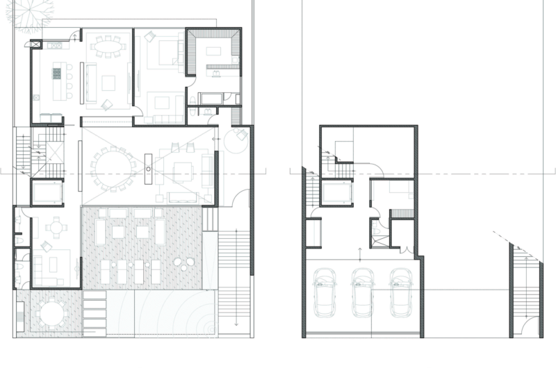
This spacious 9149 square foot home is called the CH House, and it can be found in Monterrey, Nuevo Leon, Mexico. The residence was designed by GLR Arquitectos and was built on a privileged location that was initially occupied by an older abode. After deciding to demolish the old house, the architects proceeded to make the necessary topographical adjustments so that the lot may accommodate the new massive residence.
Consequently, the rear garden disappeared almost completely and only a small contemplative area remained of it in the end. However, this beautiful groove can be admired in full from the master bedroom, family room, kitchen and breakfast room, which are placed towards the back of the home for a plus of privacy. The front outdoor areas of the abode house a semi-covered terrace as well as a superb infinity pool that benefits from exquisite views of the nearby Country Club golf course.
The main materials used in the construction process involved oak wood, black granite and exposed concrete for the exterior, while the interior was treated with white stucco for a touch of modernism and sophistication. See it all for yourself in the gallery we provided below!
Photos by Jorge Taboada





















More Similar Articles Like This
Pure Perfection: Discover the Top White Paint Colors for a Flawless Décor
Vibrant Concrete Floor Paint Colors to Elevate Your Space
Santa Barbara Style Home in Paradise Valley, Phoenix
Dreamy Oceanfront Chateau In West Vancouver, Canada
A Superb Italianate Mansion in California, USA
Boracay Resort & Spa in the Fascinating Philippines
Secluded Naladhu Island in Maldives
Seamlessly Apartment by the Beach by ZZ Architects