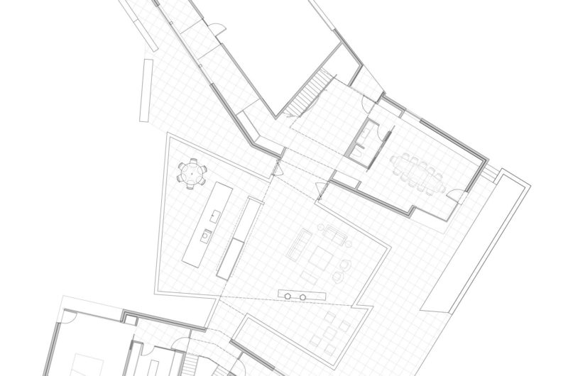
The Glenbrook Residence in Bethesda, Maryland, USA is a slightly different project, designed by David Jameson Architect. The difference consists in the fact that the house is conceptually a courtyard inserted between two heavy walls. The nature is actually framed in a well-defined space. Due to its special design, the wings of this spectacular house define its bounds and act as a strong backbone supporting the various courtyards, upper roof canopies and the dynamic living pavilion steady between. The living pavilion is the main point of interest of the project, which contains the cooking, eating, and living spaces. Another spectacular element is the floating roof created as an illusion from walls containing the spaces beneath the canopies made of glass. Spectacular mixed with greatness and style, that’s the Glenbrook Residence.
Photos by Paul Warchol Photography




















More Similar Articles Like This
Amazing Four Seasons Resort Bora Bora
6 Garden and Lawn Tips to Get Ready for Spring
Superb Luxury Penthouse in Portomaso, Malta
Extraordinary Constance Halaveli Maldives Resort
Pure Perfection: Discover the Top White Paint Colors for a Flawless Décor
10 Different Types of Blue Paint Colors
Saguaro Palm Springs by Joie de Vivre
Different Types Of Foundations For Summer Houses and Garden Buildings