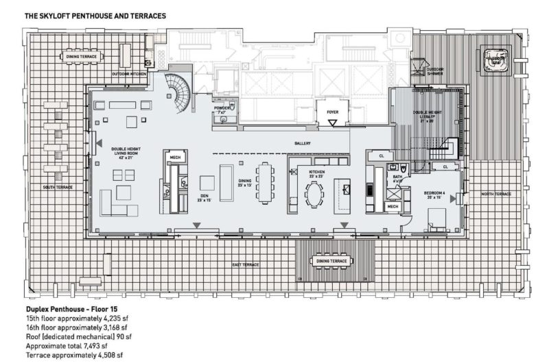
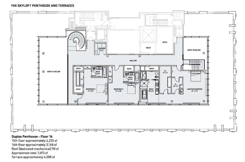
Worth a whopping $45 million, this stunning duplex apartment is situated on the top of an industrial loft building in Tribeca, New York City. It is a 1929 art deco building and it affords sweeping city views. The duplex itself is surrounded by glass walls and a spacious terrace (4,500 sq ft), and it has 7,500 square feet of luxurious living spaces.
The all-glazed exterior of the unit was designed by James Carpenter Design Associates, while the sophisticated interiors were created by Rogers Marvel Architects. The living room boasts 18-foot high ceilings and a striking glass and steel staircase that connects the two levels of the apartment. There are three fireplaces in this lavish home, an eat-in kitchen with bluestone counters plus A-grade appliances, and Lutron lighting system. The 4-bedroom, 4.5-bathroom home comes with a private garage as well.

















More Similar Articles Like This
Dreamy Oceanfront Chateau In West Vancouver, Canada
The Sophisticated Casa Villa Flamingo in Spain
Lovelli Residence: Mediterranean-Style Dwelling in Bali
Stunning Sustainable Home in Costa Rica by SPG Architects
Contemporary BO House In Envigado, Antioquia, Colombia
Stunning Banyan Tree Ungasan Bali in Indonesia
Exploring the New World of Luxury Hoteling
Lawn Care Tips, The Basics For Each SeasonÂ