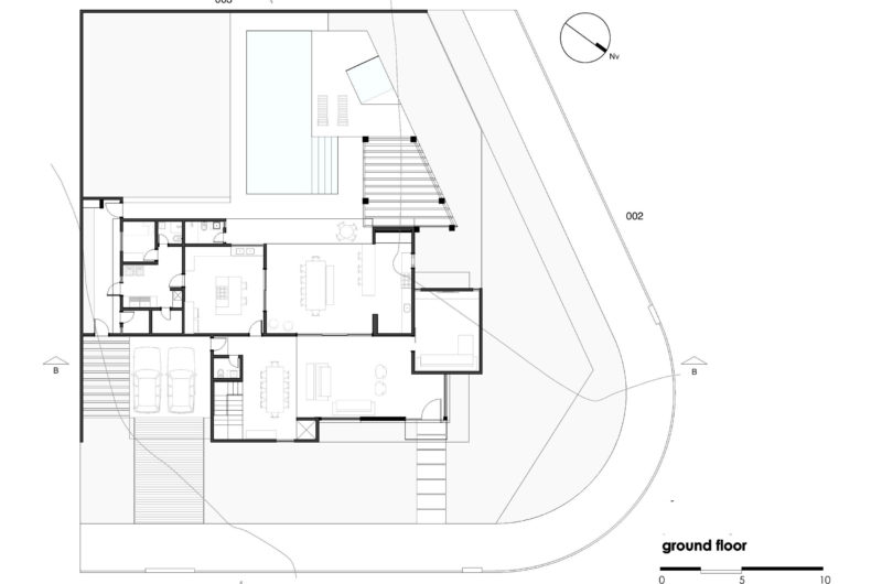
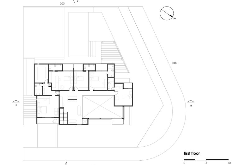
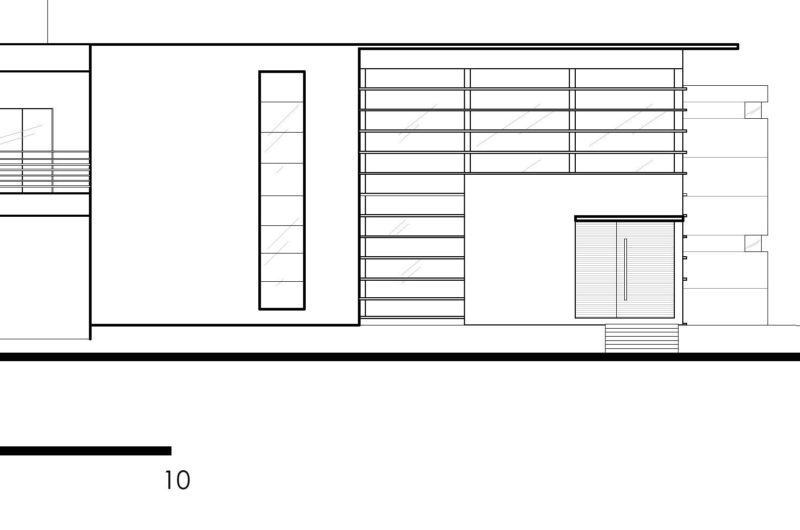
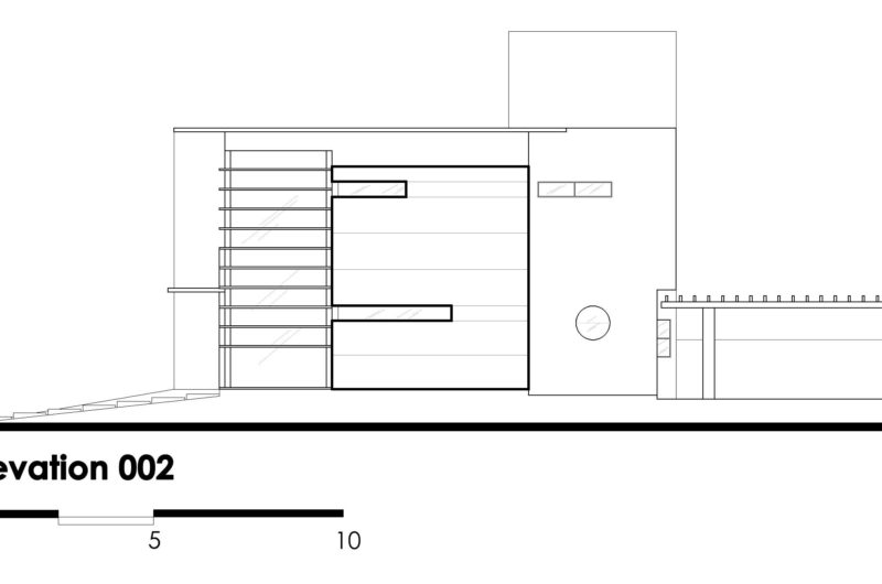
The Atenas 038 House is a gorgeous contemporary home designed by Brazilian studio Dayala + Rafael Arquitetura. It was completed in 2007, and it can be found in capital city of Goiás, Brazil, called Goiânia. With 4,850 square feet of lavishly appointed spaces, this residence is a true dream home.
Photos by: Leandro Moura
















More Similar Articles Like This
Wonderful Yachting Club Villas at Elounda Beach by Davide Macullo Architects
6 Garden and Lawn Tips to Get Ready for Spring
A Superb Italianate Mansion in California, USA
Different Types Of Foundations For Summer Houses and Garden Buildings
Gayton Road Residence by Paxton Locher Studio
Stunning Banyan Tree Ungasan Bali in Indonesia
Spectacular Luxury House in Sarasota, Florida by DSDG Inc. Architects
Benjamin Moore Exterior Paint: Vibrant Shades for a Striking Home