The Westport River House was built in 2011 by RUHL WALKER Architects for a Cambridge general contractor and his wife. Located on a picturesque site on the edge of the Westport River, the residence is surrounded by beautiful oak and cedar trees, and due to its numerous windows and glass walls, the residents are able to admire these trees as well as the river in their entire splendor. Luxurious and spacious, the residence was designed to cater to its owners’ passions for entertaining and cooking.
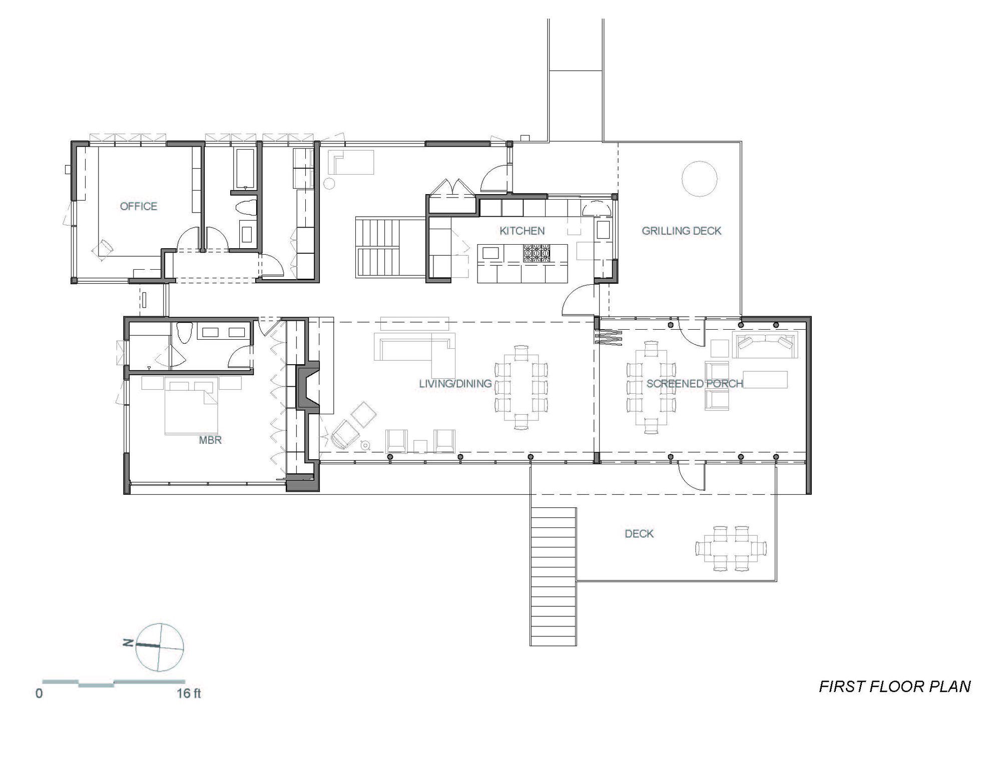
It features two bars as well as a circulation zone between them that ends in a floor-to-ceiling window, which faces the woods. All living areas are multi-functional, and even though the square footage was limited in order to save costs, the abode feels quite spacious and welcoming.
The upper floor boasts an open space that comprises the kitchen, dining area and living room as well as outdoor decks that can be used for socialization. The master bedroom flaunts a superb bathroom and built-in walnut cabinetry, while the home office can be converted into a guest room should the need arise.
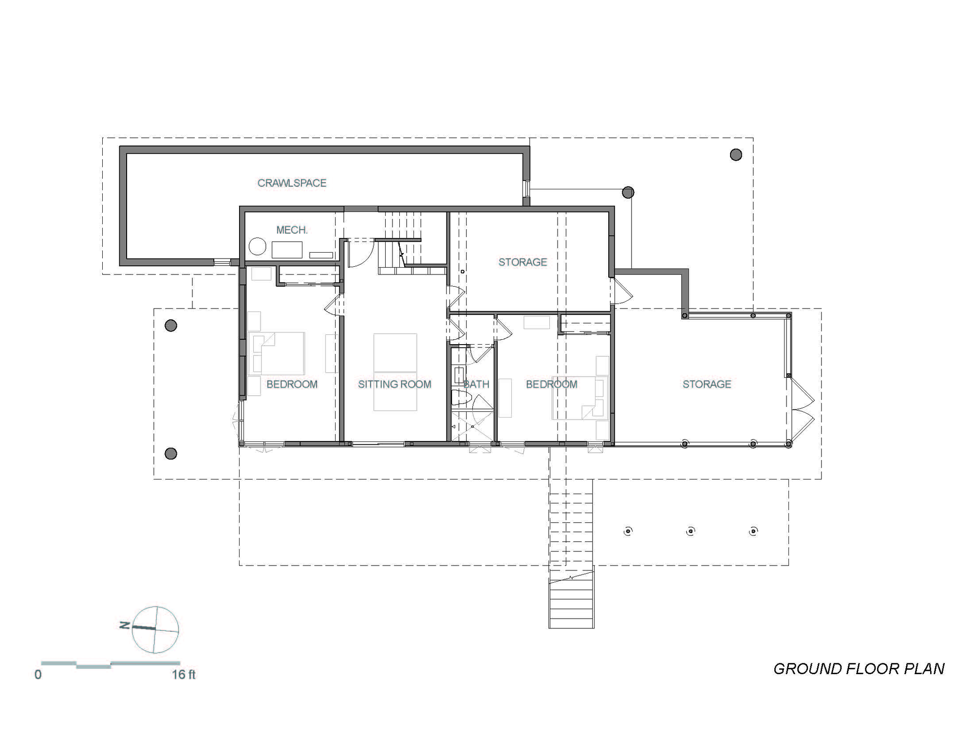
Two bedrooms, a sitting room and a bathroom are located at the basement level, where the architects also implemented a storage room.
From the architect:
Built on a gentle slope on the Westport River, less than a mile from the coast in southeastern Massachusetts is an unabashedly modern glass house designed for a well known Cambridge general contractor and his wife. Mature oaks and cedars define the property edges and frame dramatic sunset and island views. The architecture expresses the owners’ gregarious way of life, and accommodates their passions for cooking and entertaining their large group of devoted friends.
The house is technically a renovation, recycling an earlier faux “Saltbox Colonial” house’s foundation. Conceptually, two long, low bar-buildings float above sculpted lawn terraces stepping down to the river, sliding past each other to enhance views and cross ventilation. The river-side bar has a ten foot high by eighty foot long continuous wall of glass that frames views of the river, while the inland bar is shorter and more solid, with windows opening to carefully edited views of the woods. Between the two bars is a compact circulation zone that terminates at one end in a floor-to-ceiling window facing the woods; the main roof drain is directly above, framing a rain-waterfall that spills into a steel-framed, rectangular bed of river rock in the ground below.
To control costs, massing and finishes are simple, circulation space is minimal and square footage is limited, all spaces are multi-functional, and details are contemporary riffs on traditional New England conventions. The overall openness as well as the large proportion of glazing helps the house feel much larger than its actual square footage. On the upper level is an open living/dining/cooking space, contiguous screened living/dining space, separate exterior decks for cooking and gathering, a home office that doubles as guest room, and a master suite with en suite bath and wall of built-in walnut cabinetry. Newly designed within the existing basement walls are two bedrooms with shared sitting room and bath, as well as a large storage area with slatted walls for boating and beach storage, built below the screened porch.
Location: Westport, MA, USA
Year: 2011
Photographs: Peter Vanderwarker, Nat Rea
Landscape Design: Reed Hilderbrand
Interior Design: Diane Cramphin
General Contractor: Gilman, Guidelli & Bellow, Inc














More Similar Articles Like This
The JKC1 House in Bukit Timah, Singapore
Unique Click Clack Hotel In Bogota, Colombia
Spectacular Luxury House in Sarasota, Florida by DSDG Inc. Architects
Extraordinary Constance Halaveli Maldives Resort
Different Types Of Foundations For Summer Houses and Garden Buildings
Beach House CN – A Superb Contemporary Home in Peru
How Seattle Lawn Care Service Deals With Overgrown Lawns
Exceptional Coronado Bay Front Estate in California