Haus Walde is a light-filled home that was completed in 2012 by Gogl Architekten for a client in Kitzbühel, Austria. The feel of elegancy and comfort in the interior is provided by the use of wood and glass, in contrast with its rugged Alpine backdrop.
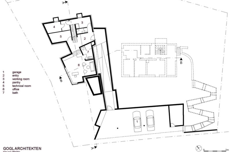
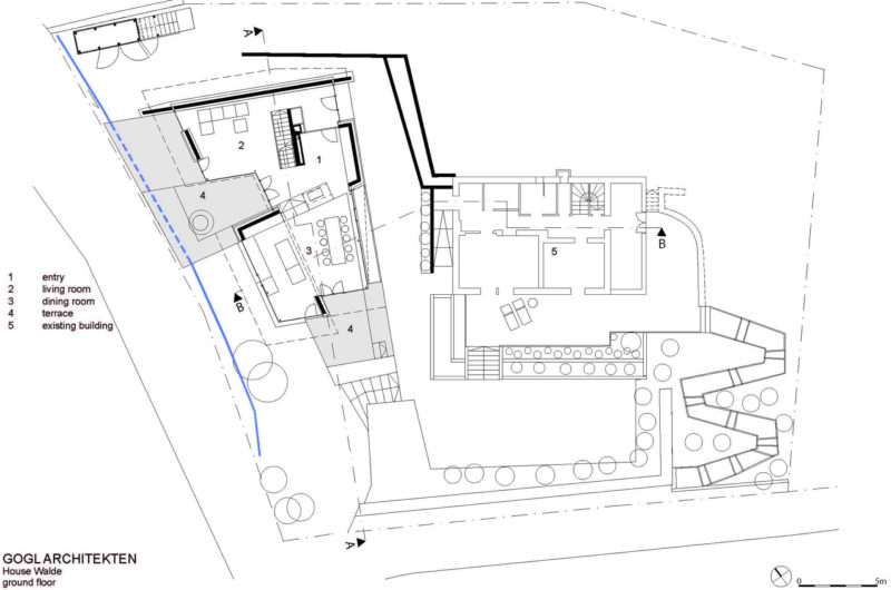
The architects had to confront many challenges when building the house, such as: the difficult slope, the narrowness of the site and even the architectural inconvenience with the existing construction.
The new house is a modern counterpoint of the old one, both being independent and standing as examples from different periods of time.
The building is somehow supported by a long wall of natural stone that provides “backing” from behind.
The cozy atmosphere inside is provided by the fireplace located on the ground floor and is considered to be the central point of this area.
Several qualitative materials were used in building the house: wood and natural stone, concrete and oak wood.
The inner rooms are interconnected and are extended by beautiful terraces with thresholds. The garden, in its turn, has as an extension the roof of the carport. The south part of the basement accommodates a living and working space and the path between the carport and the basement is used as an art area.


















More Similar Articles Like This
Amazing Four Seasons Resort Bora Bora
Wonderful Yachting Club Villas at Elounda Beach by Davide Macullo Architects
Pure Perfection: Discover the Top White Paint Colors for a Flawless Décor
Astonishing El Tovar by the Sea
Boracay Resort & Spa in the Fascinating Philippines
Stunning Banyan Tree Ungasan Bali in Indonesia
5 Ways to Turn Your Yard Into a Fancy Space
Spectacular Luxury House in Sarasota, Florida by DSDG Inc. Architects