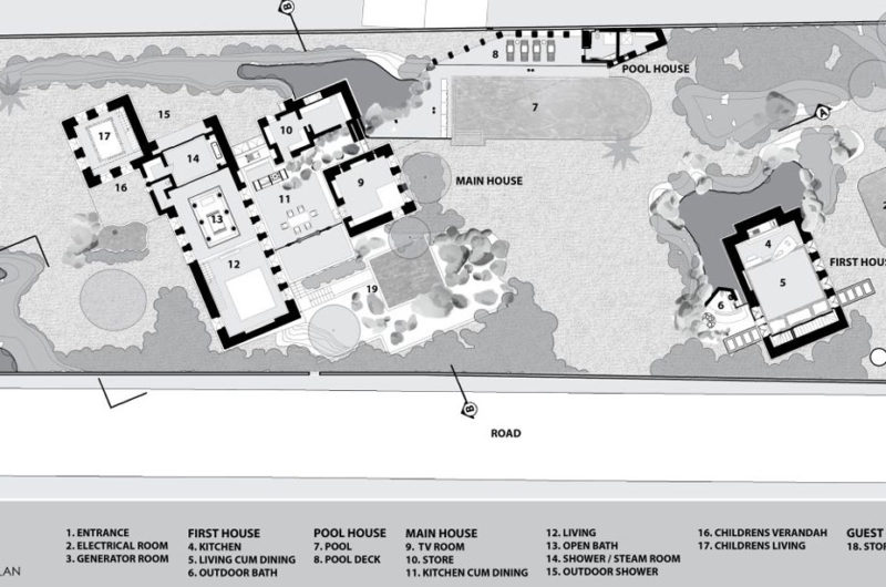
Located in South India, this lovely contemporary compound includes three lovely houses designed by Mancini and Govinda Luke Bowley.
The project was completed in 2009 in a countryside environment, and the property occupies 4,000 square meters (43,055 square feet) of land. This includes the three houses, a small forest, a pool with pavilion, tropical rocks, sunken garden with well, savanna, suspended gardens, and outdoor bathrooms.
Even though the property ensures permanent connection with the outdoors, no compromise has been made in terms of privacy and intimacy. The common areas on the ground floor are in a close relationship with the living quarters upstairs. The sloping roofs help keep this connection permanent. Traditional architecture is beautifully combined with modern features, such as large roof overhangs, and huge windows.
The buildings are also sustainable, flaunting innovative ways of keeping the interiors cool in the hot climate of the area.





















More Similar Articles Like This
Spectacular Rooftop Apartment by Innocad
Different Types Of Foundations For Summer Houses and Garden Buildings
Boracay Resort & Spa in the Fascinating Philippines
Extraordinary Constance Halaveli Maldives Resort
The JKC1 House in Bukit Timah, Singapore
Outstanding Bodrum Houses in Yalikavak, Turkey
Secluded Naladhu Island in Maldives
Tips for Choosing the Right Blue Paint Color for Your Dining Room