STAAB Residence is a contemporary home located in Scottsdale, AZ, USA. It was designed by Chen + Suchart Studio and it spans over an area of 297 sqm.
The structure is a series of sand-blasted 12-8-16 masonry walls, upon which a stainless steel and glass clad volume floats. In some places that are associated with the entry courtyard and the outdoor space for a guest room, the masonry opens up to permit the air and light to flood the space.
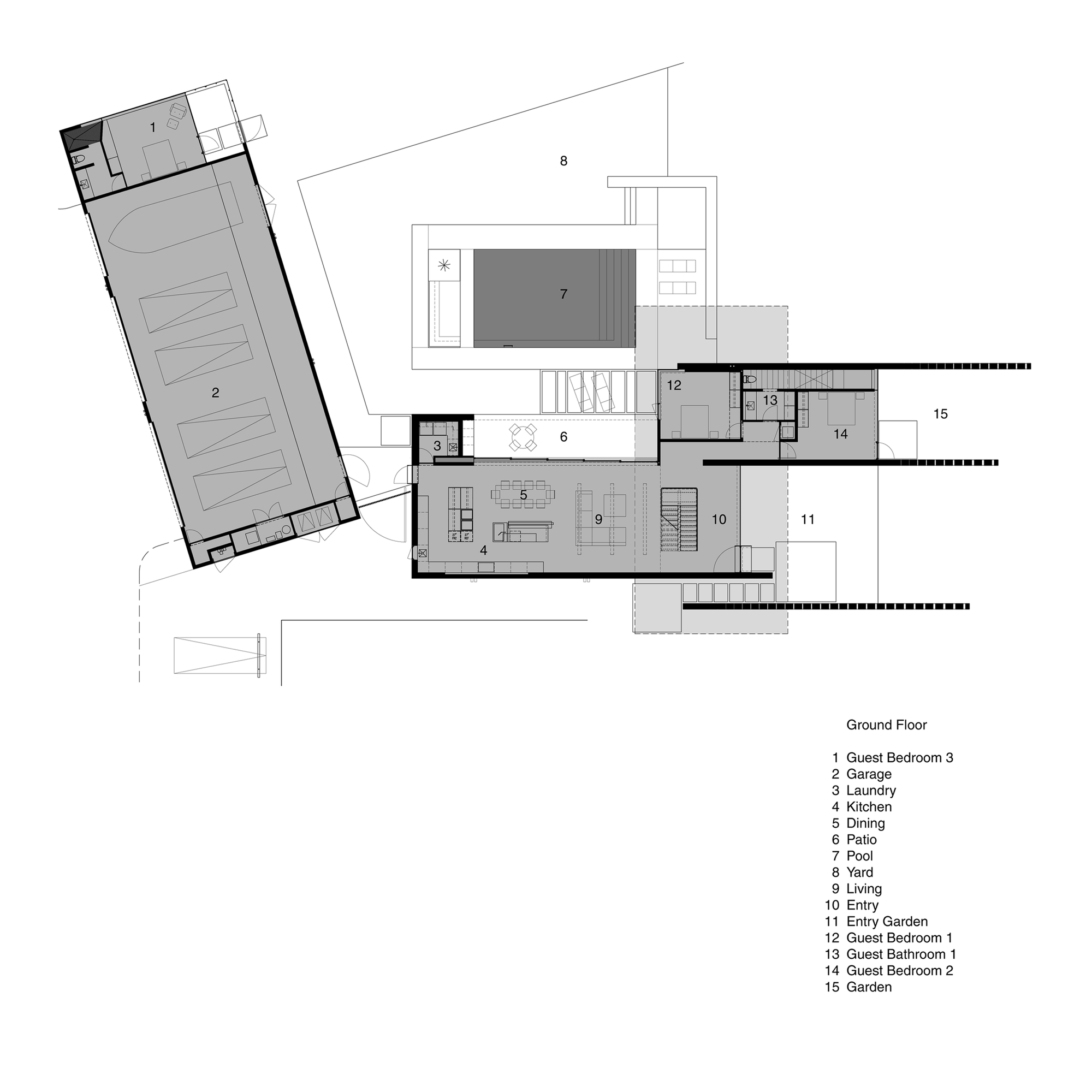
The garage is housed by a separate weathering steel plate clad volume that also provides privacy to the pool area and the backyard.
Before entering into the residence, one must cross the monolithic field of desert grasses and to pass through a portal created by two masonry walls and the volume above, but the image is quickly erased when the person sees the garden, which is an interesting area of repose.
A series of spaces located between the masonry walls shelter two guest bedrooms, one being focused on the immediate backyard area, while the other is concentrated on the more distant view to the north. These two bedrooms are separated by one larger bathroom space, while the water closet, walk in shower and bath configuration maintain their focus on the north side.
The master suite and the office are located in the upper volume, both providing panoramic views of the McDowell Mountains to the north.
The STAAB Residence is a complex structure that provides security, privacy, comfort and all the amenities required for a tranquil life.
Photos by Winquist Photography




















More Similar Articles Like This
Santa Barbara Style Home in Paradise Valley, Phoenix
Vibrant Concrete Floor Paint Colors to Elevate Your Space
Spectacular Luxury House in Sarasota, Florida by DSDG Inc. Architects
Green Gables Home In Fairfield, Connecticut, United States
How Seattle Lawn Care Service Deals With Overgrown Lawns
Lovelli Residence: Mediterranean-Style Dwelling in Bali
The JKC1 House in Bukit Timah, Singapore
10 Different Types of Blue Paint Colors