The Donoso-Smith House designed by EMa arquitectos + Raimundo Salgado is actually a pretty special place because of the developer’s request of transforming it into an apart-from-the-rest-of-the-market project.
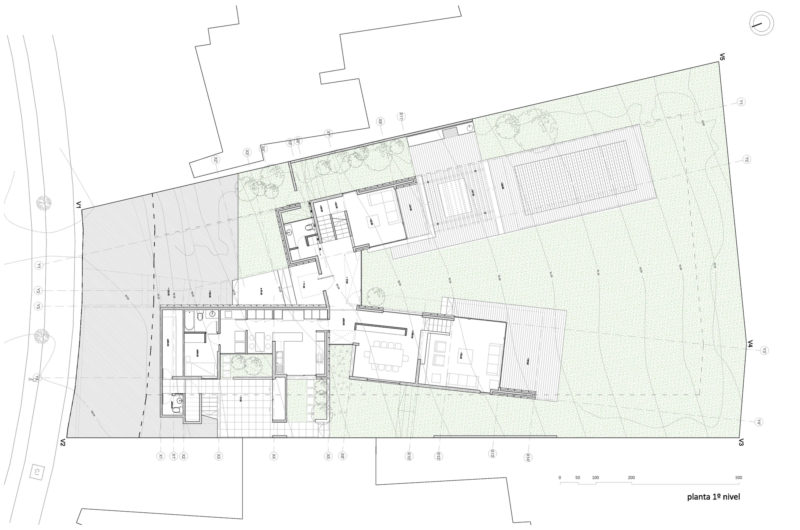
Located in Los Dominicos, Santiago, the residence maintains through its rectangular volumes a low profile street level but expands as you make your way into the site.
The outdoor swimming pool connects perfectly with the lower level which contains large lighten windows.
The house is structured by two volumes connected by a double-high hall, while through the dwellingseveral patios have their own arranged place that give the owner the chance of being outdoors. What could be fancier than that?
Photos by Marcelo Cáceres




















More Similar Articles Like This
Saguaro Palm Springs by Joie de Vivre
Loving Luxury at Mardan Palace Resort, Turkey
Outstanding Bodrum Houses in Yalikavak, Turkey
Beach House CN – A Superb Contemporary Home in Peru
Exploring the New World of Luxury Hoteling
Pure Perfection: Discover the Top White Paint Colors for a Flawless Décor
The Superb Maradiva Villas Resort & Spa in Mauritius
The Sophisticated Casa Villa Flamingo in Spain