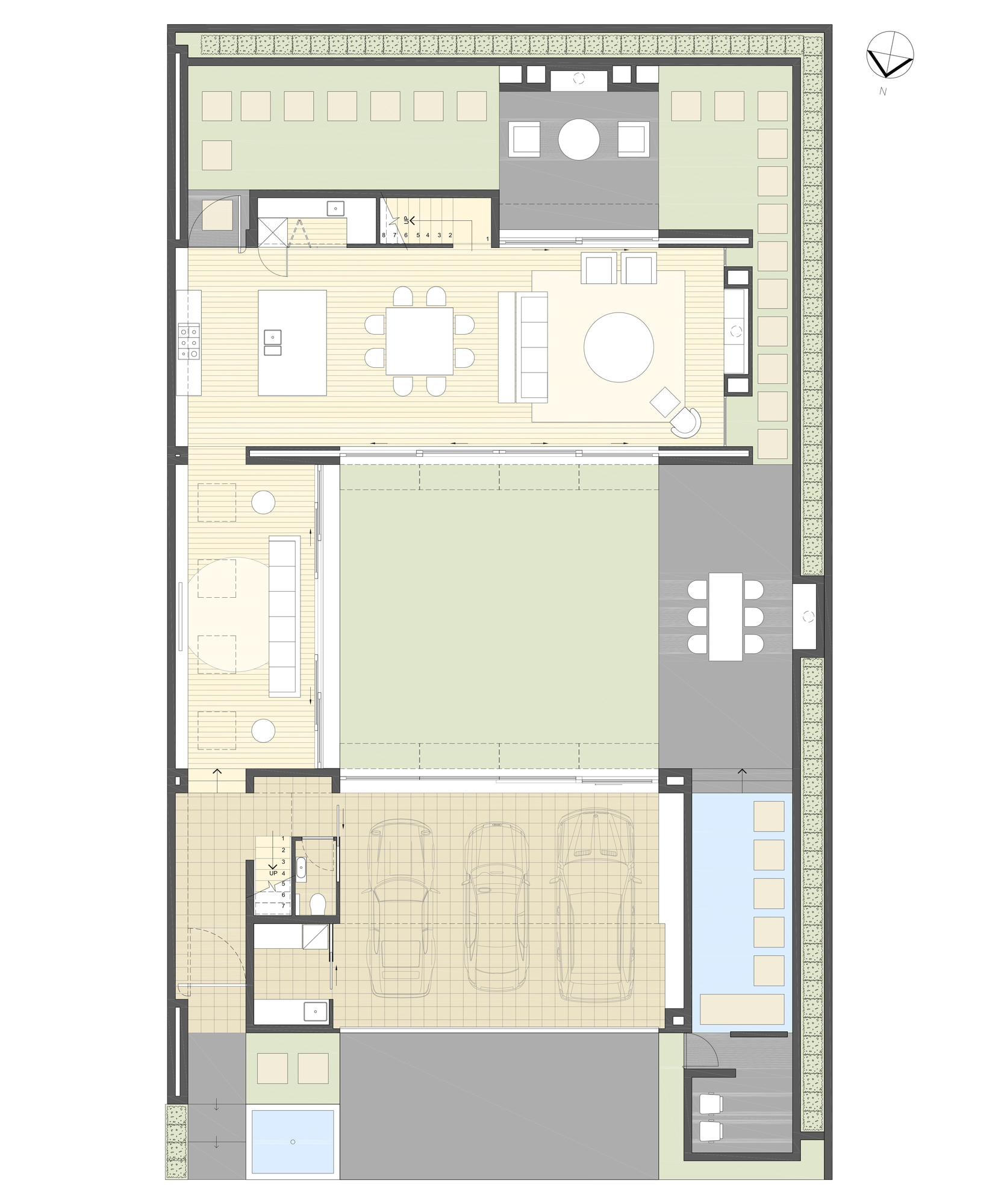
The City House located in Auckland, New Zealand was completed by Architex in 2011. This house was built for a single client that has a busy professional life. It can be observed the transparency and the flow of spaces, the site being developed to its maximum.
The outdoor rooms are linked by a circulation gallery, creating an axial focus for the length of the site on entry.
The sliding glass panels, which open toward the courtyard, create open balconies for living and sleeping. The street façade is private offering just a hint of the sophistication inside.
Photos by Simon Devitt










More Similar Articles Like This
Stunning Sustainable Home in Costa Rica by SPG Architects
A Superb Italianate Mansion in California, USA
The Superb Villa Verai on Phuket Island, Thailand
Vibrant Concrete Floor Paint Colors to Elevate Your Space
Secluded Naladhu Island in Maldives
Different Types Of Foundations For Summer Houses and Garden Buildings
Green Gables Home In Fairfield, Connecticut, United States
Exploring the New World of Luxury Hoteling