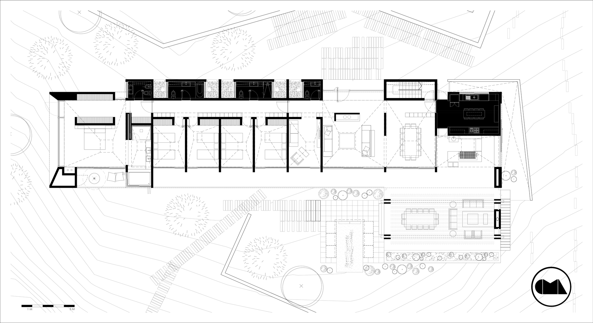
Built on a property that offers exquisite panoramas of Lake Vichuquén, the RP House was designed by CMA Arquitectos and was finished in 2014 in Laguna Vichuquen, Vichuquén, Maule Region, Chile. It features 7,534 square feet of living space and is composed of a large pavilion that boasts a folding roof. The roof takes on the shape of different prisms and allows natural light to enter the house from above. At the back, a concrete volume merges with the wooden pavilion and forms a longitudinal body with opaque walls and special spaces for the kitchen and bathrooms.
Apart from the skylights embedded in the roof, the RP House also flaunts generously sized windows that offer perfect panoramas of the nearby forest. Outside, a wooden deck faces the lake and includes a dining table for eight as well as a lounging space with comfortable couches and a fireplace.
From the architect:
The property, located at the foot of Lake Vichuquén, in Region VII, is set longitudinally with respect to the horizon, with the aim of recognizing the variety of the landscape and to capture the best views of the lake, through a corridor terrace running along the entire space.
The volume is defined as a large pavilion, a body that rests quietly on the territory, mimicking the slope and vegetation. All the stillness of this body is eroded on its roof, which folds into different prisms which capture the overhead light and views of the treetops, bringing inside the spatial perception of living in a forest.
Internally, each space builds its own atmosphere of light and scale, in a wooden enclosure that traverses floors, walls and roof, until getting lost in the ceiling. A concrete volume intersects the wooden pavilion in the rear, as a longitudinal volume with opaque walls and voids that contain within them all the wet program of the house: bathrooms and kitchen, where each enclosure opens to a light courtyard contained within its walls.
Location: Laguna Vichuquen, Vichuquén, Maule Region, Chile
Project Architects: Pablo Campano y Gonzalo Martínez
Project Area: 700.0 m2
Project Year: 2014
Photographs: Sebastian Aedo / Estudio Apulso
Collaborator: Javier Hernández P.
Construction: Mauricio Urzúa
Energy Efficiency Project: SGE2 Chile SPA




















More Similar Articles Like This
Gorgeous And Spacious Home In Sunset Strip
Loving Luxury at Mardan Palace Resort, Turkey
Wonderful Yachting Club Villas at Elounda Beach by Davide Macullo Architects
Opulent Mandarin Oriental Hotel in Paris
Different Types Of Foundations For Summer Houses and Garden Buildings
Heavenly Lily Beach Resort & Spa In Huvahendhoo, Maldives
Dreamy Oceanfront Chateau In West Vancouver, Canada
Seamlessly Apartment by the Beach by ZZ Architects