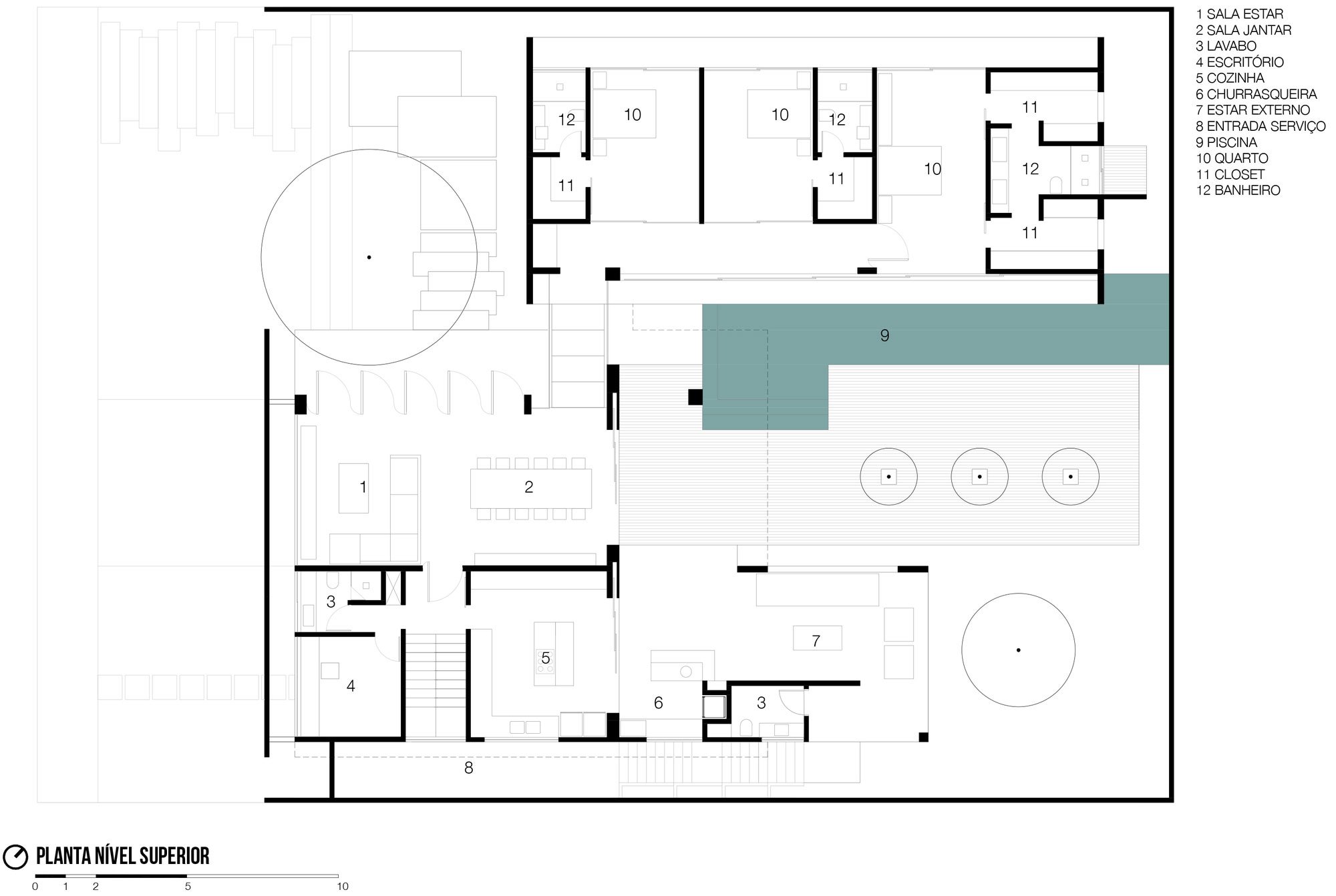
Nestled on a 0.2-acre site in Uberlândia, Brazil, the RMJ Residence was designed by Felipe Bueno & Alexandre Bueno and was completed in 2012. It features 5,920 square feet of space and blends beautifully with its surrounding environment thanks to a modern and highly functional design. In order to comply with the client’s requirements, the architects decided to divide the house into two floors. The ground level comprises the cellar, laundry and garage, while the upper level houses the leisure areas, the social spaces and the private living spaces.
The home’s entryway can be reached by climbing a small concrete staircase that follows the slope of the land. A vertical garden expands from the outdoor garden and makes its way indoors thus ensuring privacy from neighboring eyes. Well lit and naturally ventilated, the RMJ Residence boasts a bedroom volume overlooking the swimming pool, and this volume features floor-to-ceiling windows that blur the limits between the indoors and outdoors. The bedrooms also open up to an indoor playing space on the opposite side of the pool.
From the architect:
The volume of the house is the result of the design of the client: to have a house on one level on a plot with a height difference of almost 4 meters. To understand the needs of the client, without dramatically changing the natural contour of the land, we divided the program into two floors: on the street level are all the technical units (garage, laundry, cellar), while the rest of the program (social, private, and leisure areas) are organized in a single upper floor, which is in a way a house on high ground.
The division of the volumes on the main floor was initially drawn by the presence of a large tree in the ground, which created a division into two blocks, one social and the other private. By contrast, two open spaces were created, an entrance garden in an interior leisure area with a pool and a large deck.
The main entrance to the house is through a concrete staircase that defines the road organically in the slope of the land, which, through some elongated steps, alternates the circulation and places of permanence in the entrance garden.
On the opposite side of the large wall clad in wood on the facade, we installed a vertical garden which expands from the external garden to the interior. As a result between this wall and the edge of the interiors, the environments are privileged with natural lighting and ventilation as well as privacy in relation to neighbors.
The entrance to the social area is through large frames that integrate interior and exterior spaces, such integration is repeated for the internal garden, opening to the living room, dining room and kitchen to the leisure area of the house.
Half a level above, overlooking the pool, we have the bedroom volume. The volume uses the setback of the lateral boundary of the site to create a private green corridor, where residents can open the floor to ceiling windows, without any privacy issues. On the other side, through large wooden frames, the bedrooms open to the interior play area.
Architects: Felipe Bueno & Alexandre Bueno
Location: Uberlândia – MG, Brazil
Project Area: 550.0 m2
Project Year: 2012
Photographs: Cae Oliveira
Interiors and Landscape: Maria Júlia Bueno
Site Area: 1000 m²












More Similar Articles Like This
Beach House CN – A Superb Contemporary Home in Peru
Spectacular Rooftop Apartment by Innocad
The Sophisticated Casa Villa Flamingo in Spain
Pure Perfection: Discover the Top White Paint Colors for a Flawless Décor
Secluded Naladhu Island in Maldives
5 Ways to Turn Your Yard Into a Fancy Space
Saguaro Palm Springs by Joie de Vivre
Exploring the New World of Luxury Hoteling