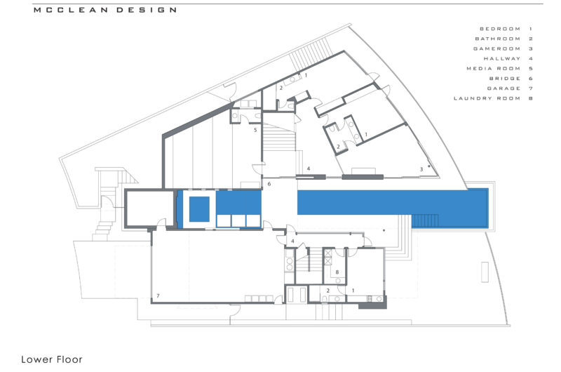
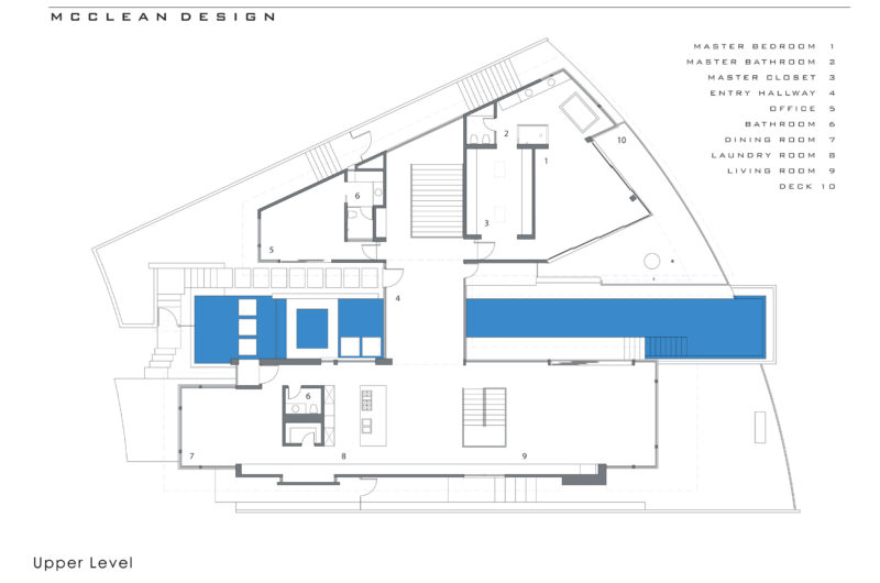
Blue Jay Way Residence is a 6,800 square foot contemporary home built by Corr Contemporary Homes. Completed in 2008 by McClean Design, this gorgeous property is located in Los Angeles, Californiaand brings out the beauty of the urban style.
All living spaces provide access to the incredible views over the downtown and west Los Angeles, Santa Monica, the Pacific and Catalina Island. If you thought that having a water wall in your house is just about enough, well, it isn’t because the place also features a 75-foot-long lap pool suspended over the slope into the view.
As you enter the house, you get to step on glass bridge over the pool. The living room and the master room seem like hovering over the outdoor spaces, while the lower level consists of several guest rooms and a multiple garage parking.
With such spectacular views, this home will be worth every penny if will ever be put up for sale.
Photos by Nick Springett



















More Similar Articles Like This
Green Gables Home In Fairfield, Connecticut, United States
Beach House CN – A Superb Contemporary Home in Peru
Shadowed Depths: Vintage-inspired Paint Colors for Dark Basements
Marvelous Anantara Dhigu Resort
Opulent Mandarin Oriental Hotel in Paris
Plain Geometric Residence Designed by Lidija Dragisic
Spectacular Luxury House in Sarasota, Florida by DSDG Inc. Architects
Unique Click Clack Hotel In Bogota, Colombia