The Sixteen Doors House is a home located right in the middle of nature in Hillsdale, New York that was built with dedication and passion by Incorporated Architecture & Design.
Its interior gathers a little bit from the surrounding woodland with warm colored walls from the 70s, wooden floors, ceramic decorations and even a small potted tree.
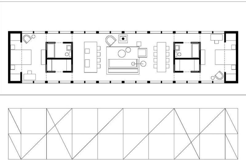
Being covered in glazing on the two long sides of the structure, the 1350 square foot interior is actually “in” the landscape. The sustainability of the house is given just by four feet of solid wall on the extreme ends of the building, without using any piece of metal.














More Similar Articles Like This
These Top Tips Will Help You to Turn Your Garden into the Ultimate Glamping Site!
Stunning Sustainable Home in Costa Rica by SPG Architects
Saguaro Palm Springs by Joie de Vivre
Lawn Care Tips, The Basics For Each Season
Wonderful Yachting Club Villas at Elounda Beach by Davide Macullo Architects
70 Shades of Green: Benjamin Moore’s Vibrant Paint Colors
Astonishing El Tovar by the Sea
Heavenly Lily Beach Resort & Spa In Huvahendhoo, Maldives