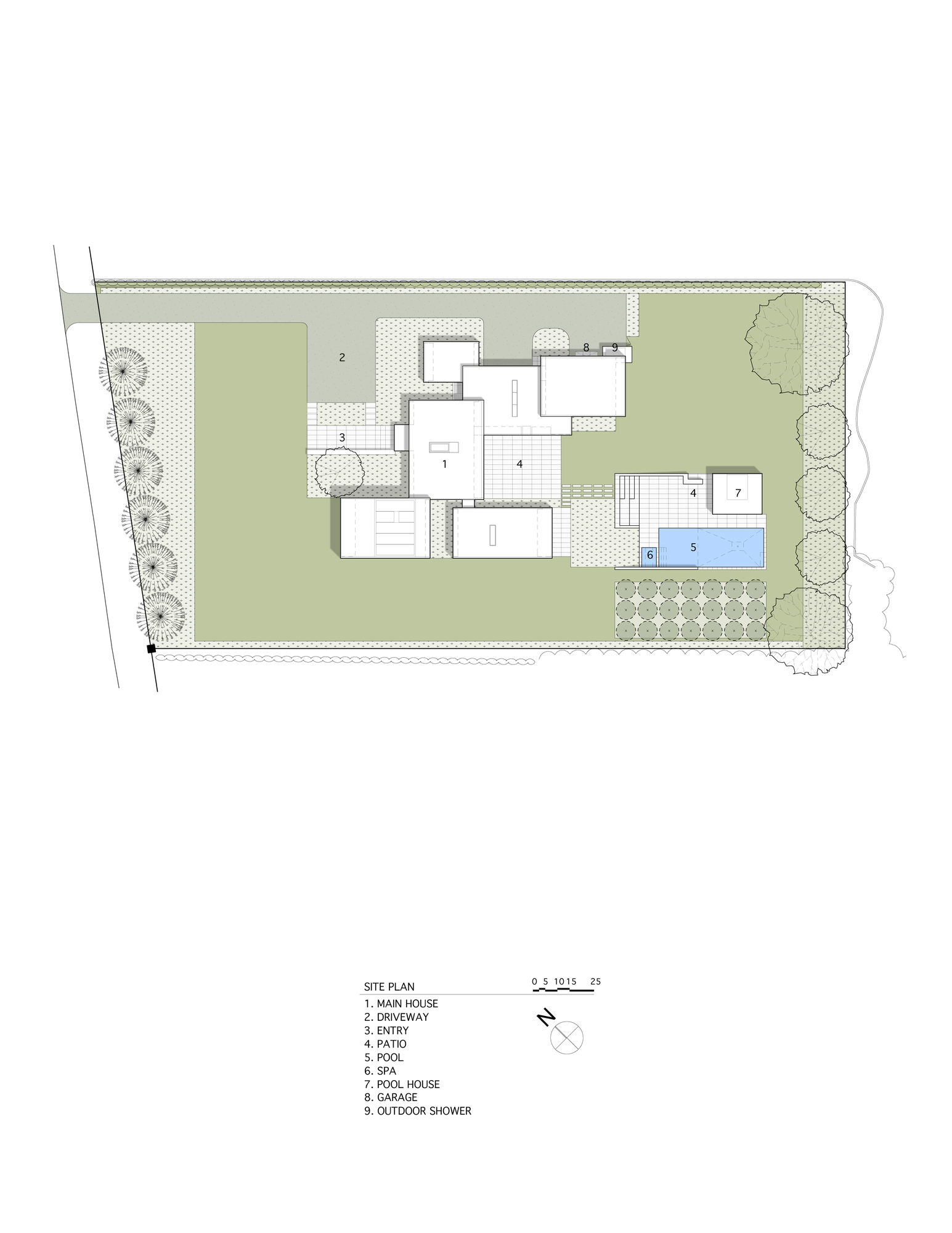
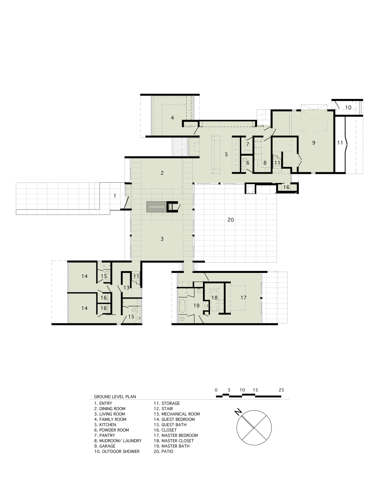
Sam’s Creek is a house that provides both intimacy and the necessary opening to the outdoor place. It was designed by Bates Masi Architects according to the owner’s wishes of creating a multifunctional home. For example if a dinner party takes place, the rest of the family is not disturbed at all. Its transparency provides a setting where guests can see and be seen.
Multiple open-ended boxes which have independent audio, video and climate control are adjusted to encase the architectural program. Between these boxes, gardens and patios are arranged; each one of them occupies a certain program in order for different events to take place.
If you have a busy life and you can’t seem to put some order in it, then this kind of house would be perfect for you because no matter what you want to do, you can do it without attempting to the tranquility and the privacy of the rest of the family, all due to the separation of program into individual volumes.


















More Similar Articles Like This
Spectacular Luxury House in Sarasota, Florida by DSDG Inc. Architects
Amazing Four Seasons Resort Bora Bora
Exploring the New World of Luxury Hoteling
Green Gables Home In Fairfield, Connecticut, United States
Different Types Of Foundations For Summer Houses and Garden Buildings
Secluded Naladhu Island in Maldives
Shadowed Depths: Vintage-inspired Paint Colors for Dark Basements
Marvelous Anantara Dhigu Resort