Sketched out by the expert architects over at Jorge Bolio Arquitectura, Montebello 321 is a contemporary house that is located in Merida, Yucatan, Mexico. It features local materials such as Mayan cream marble in its social spaces, Tzalam wood in its circulation area and black anodized aluminum for its external blinds. The lower floor boasts a series of stone volumes that incorporate the social spaces. The upper floor was created using a metal framework, and it comprises the bedrooms and the bathrooms.
The residence is composed of several volumes, all of which are arranged in such a way as to welcome as much natural light and ventilation. To the north, the volumes open up and form an open recreation space that receives indirect natural light as well as natural cooling from the sea breeze. Montebello 321 flaunts 6,888 square feet of living space and was completed in 2013.
From the architect:
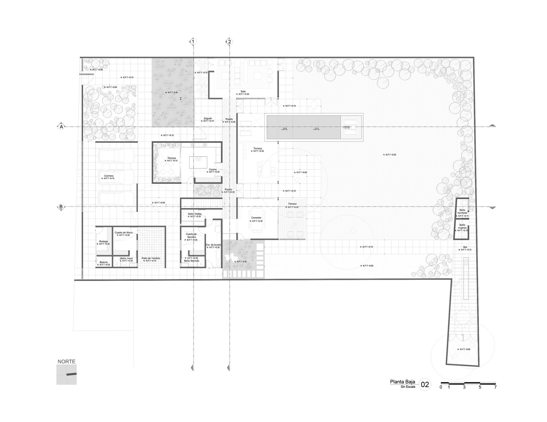
The house is located north of the city of Merida in the Yucatan Peninsula, in a residential area that is growing. In an lot with generous dimensions (approximately 1,460m2) the program is sprayed in several volumes, increasing the surfaces of the facades to generate greater contact with the outside and provide natural light and ventilation for the house.
These volumes are laid out in the southern part of the site, open to the north and allowing a large open recreation space for the family to the north, privileged by an indirect natural light and fresh air ventilation from the sea.
The lower level is organized through stone volumes that contain the social spaces. Between these volumes the space seeps leading to the general circulation, and turning the daily journey into one with countless experiences and discoveries of light and shadow, interior and exterior spaces.
The upper level is a metal framework that sits lightly on the stone volumes and protect the private spaces of the bedrooms, all in steady but moderate contact with the outside. The circulation in this level is generated by metallic connections which support a wooden marimba that integrates the different spaces while respecting the privacy of each of them, it is the threshold between the different private spaces.
The materials used in the project are local and common in Yucatan. The Mayan cream marble creates a warm atmosphere in social areas, with a format of 30.5 x 61cm with an old-looking finish on walls, contrasting with polished large format plates for flooring. Tzalam wood in the circulation area strengthens the residential character of the project. The external blinds are made of black anodized aluminum and clear satin crystals depending on the level of privacy that is required in each area.
Architects: Jorge Bolio Arquitectura
Location: 97139 Merida, Yucatan, Mexico
Project Architect: Jorge Bolio Rojas
Project Area: 640.0 m2
Project Year: 2013
Photographs: David Cervera















More Similar Articles Like This
6 Garden and Lawn Tips to Get Ready for Spring
Opulent Mandarin Oriental Hotel in Paris
Beautiful Apartment in Stockholm for $1 Million
Beach House CN – A Superb Contemporary Home in Peru
These Top Tips Will Help You to Turn Your Garden into the Ultimate Glamping Site!
The Superb Villa Verai on Phuket Island, Thailand
10 Different Types of Blue Paint Colors
Best paint colors for the living room