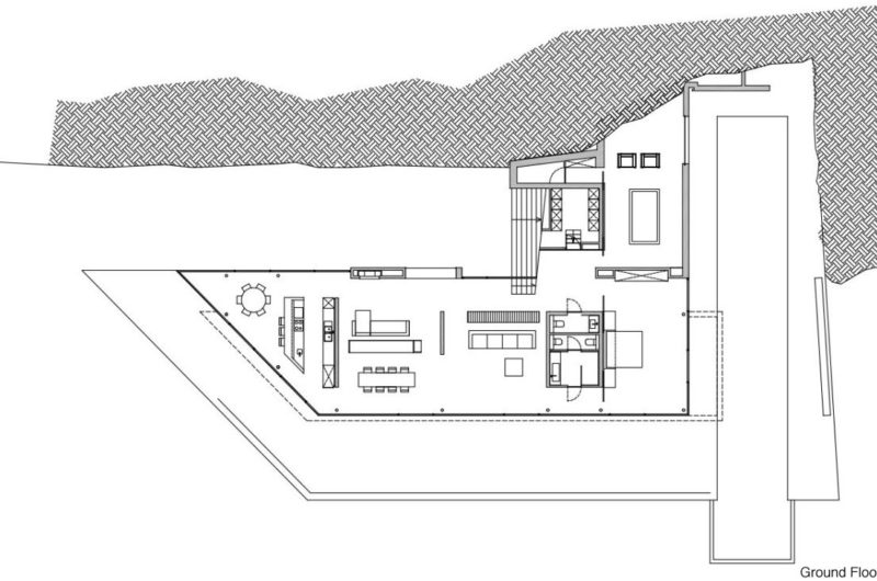
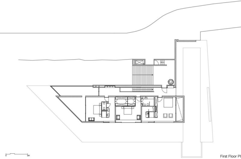
AIBS House is a 4,305 square foot residence by Atelier d’Architecture Bruno Erpicum & Partners (AABE), an architectural firm in Belgium. Located on a steep cliff in Ibiza, Spain, it was completed in 2002 with a perfect orientation so as to take full advantage of the sweeping sea views.
Floor-to-ceiling windows frame the landscape while also allowing natural light to flood the rooms. Another function of the extensive glazing is that of protection against winds. The building does not affect nature in any way, being perched at an altitude of 521 feet. Inviting terraces give a sense of continuity from inside to outside spaces, and the infinity-edge pool seems like a reflection of the vast sea that merges with the horizon.
Photos by Jean-Luc Laloux



















More Similar Articles Like This
A Superb Italianate Mansion in California, USA
Unique Click Clack Hotel In Bogota, Colombia
Gayton Road Residence by Paxton Locher Studio
Beautiful Apartment in Stockholm for $1 Million
Stunning Banyan Tree Ungasan Bali in Indonesia
Behr’s Brilliant Blues: 70 Shades of Stunning Paint Colors
Different Types Of Foundations For Summer Houses and Garden Buildings
Astonishing El Tovar by the Sea