Built on a spacious lot that’s mostly occupied by trees, the minimalistic Roof House is located in Fredensborg, Denmark. Completed in 2015, the project is based on an existing villa, which ended up receiving an impressive makeover courtesy of LETH & GORI. The residence is inhabited by a family with three children, and due to several local planning restrictions, the only way that the expansion could be performed was by going upwards.
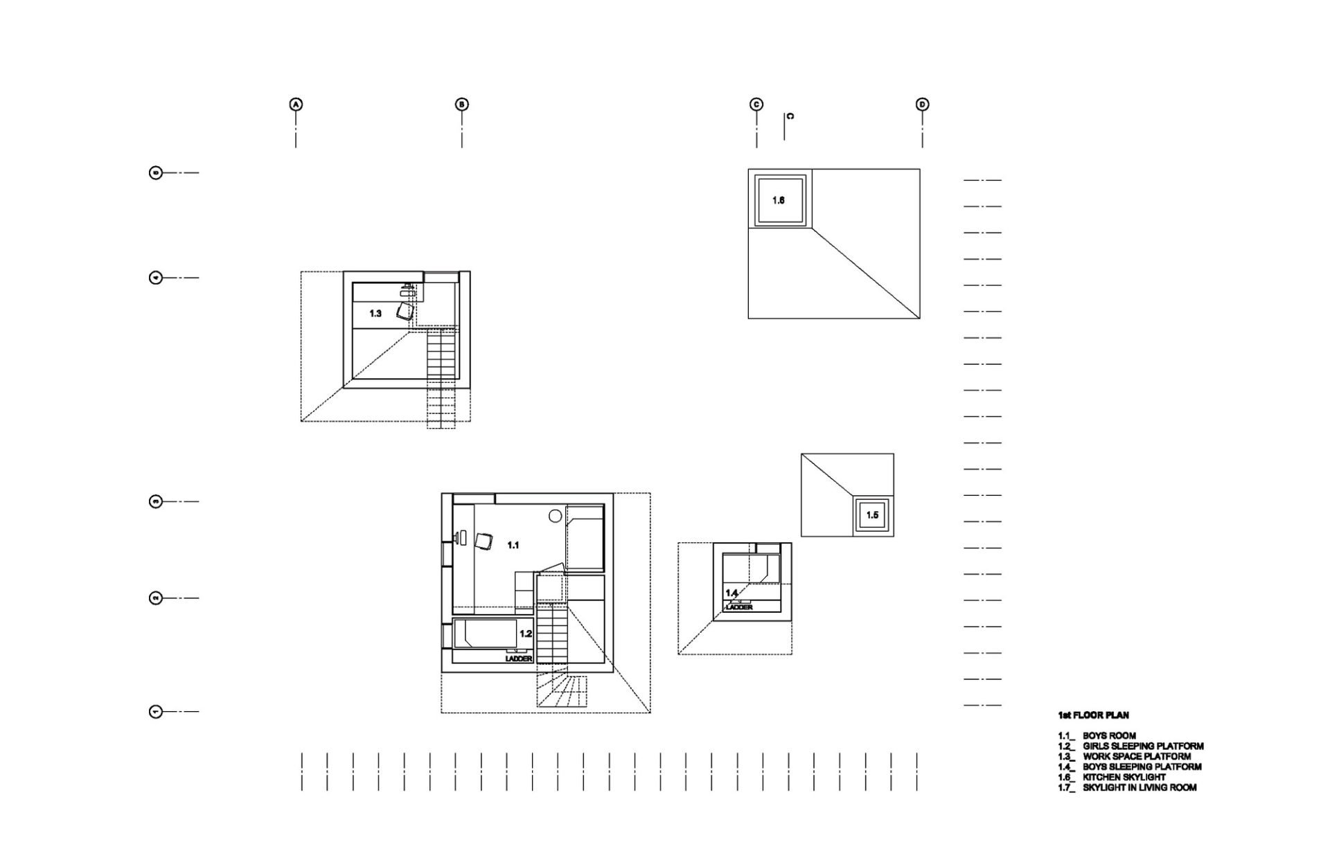
The architects decided to implement a few extra roof extensions, hence the home’s name. The new additions comprise a workspace, sleeping platforms for all of the children’s rooms, and several skylights. The facade also received some work, and it is now more energy efficient while featuring more generous openings. The roof additions as well as the skylights are all wrapped in asphalt roll roofing that ensures proper protection from the elements.
From the architect:
Roof House is a project that completely transforms an existing villa beautifully situated on a large site filled with trees in Fredensborg, Denmark.
The existing house is occupied by a family with three children and the specific needs of the family formed the basis of the project. Planning restrictions on the site called for a careful and minimal approach and this lead to the idea of extending the house by upwards by adding a series of roof buildings.
This way the project adds a new bedroom and a workspace as well as skylights and sleeping platforms for all the childrens bedrooms. In addition the project includes redesign of the facade making it more energy efficient and adding new and larger openings.
The roof construction and skylights is wrapped in asphalt roll roofing.
The new roof opens up the house towards the tree tops and the sky. The changing light filtered through the branches. The sound of the wind in the trees.
Architects: LETH & GORI
Location: 3480 Fredensborg, Denmark
Area: 285.0 sqm
Project Year: 2015
Photographs: Stamers Kontor
Engineering: Jørgen Nielsen Rådgivende Ingeniører










More Similar Articles Like This
Secluded Naladhu Island in Maldives
70 Shades of Green: Benjamin Moore’s Vibrant Paint Colors
Spectacular Rooftop Apartment by Innocad
A Superb Italianate Mansion in California, USA
Beach House CN – A Superb Contemporary Home in Peru
10 Different Types of Blue Paint Colors
Seamlessly Apartment by the Beach by ZZ Architects
Lawn Care Tips, The Basics For Each Season