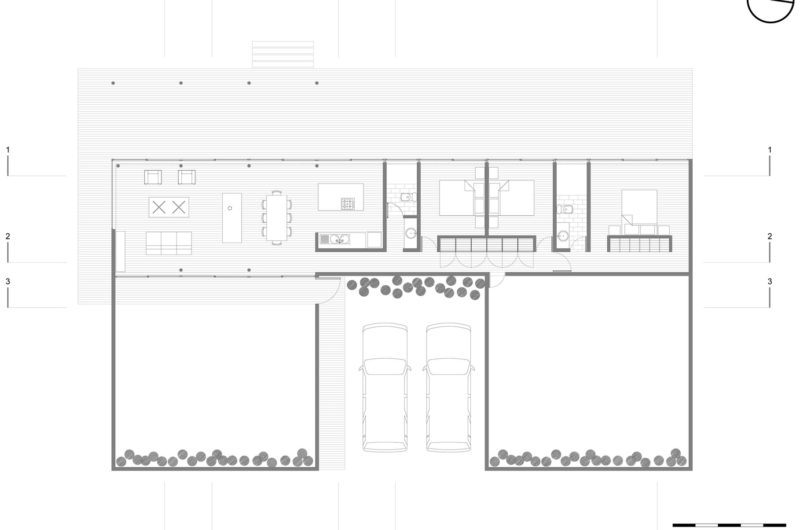
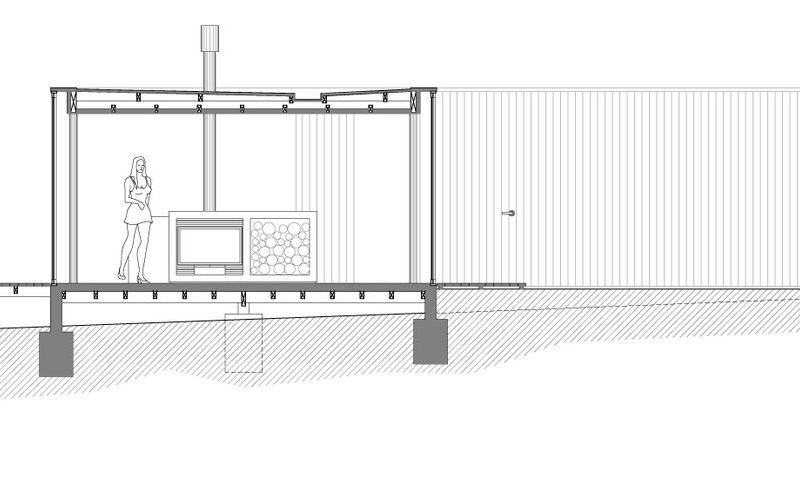
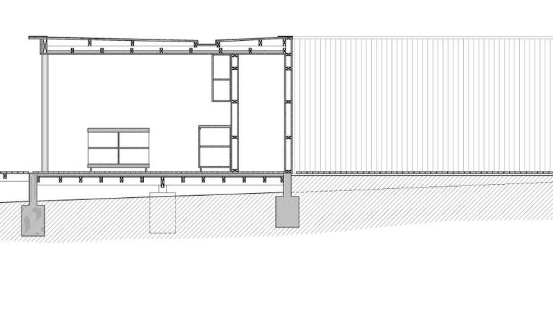
House W is an incredible minimalist residence in Huentelauquen, Chile. It was designed by architectural firm 01Arq, who wanted to keep the residence protected from the elements, but also very open and connected with the surroundings. The one-story house flaunts stunning views of the nearby ocean.
Photos by Aryeh Kornfeld and Mauricio Fuertes









































More Similar Articles Like This
A Superb Italianate Mansion in California, USA
Green Gables Home In Fairfield, Connecticut, United States
Best paint colors for the living room
Contemporary BO House In Envigado, Antioquia, Colombia
The Sophisticated Casa Villa Flamingo in Spain
Loving Luxury at Mardan Palace Resort, Turkey
The Superb Maradiva Villas Resort & Spa in Mauritius
Stunning Sustainable Home in Costa Rica by SPG Architects