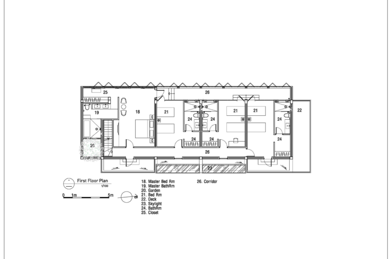
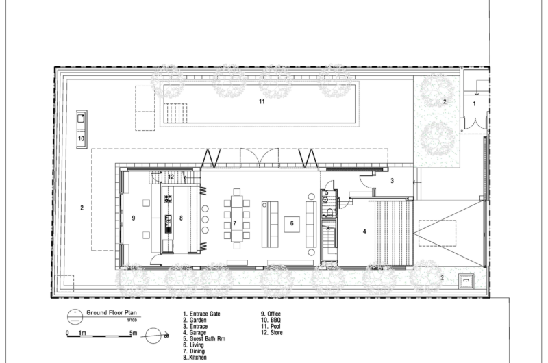
The Fuschia Villa was sketched out by 2 architectural firms called MimA NY studio and REAL architecture, and it was built in the District 2 of Thao Dien in Vietnam. Featuring 4,467 square feet of living space, this villa was designed with modernism and minimalism in mind, and it offers irreproachable living conditions for its fortunate inhabitants.
Aside from its outstanding living arrangements, high-end conveniences and modern furniture pieces, the residence also stands out with a stunning exterior design. The swimming pool that can be found outdoors is equipped with impressive lighting arrangements that can always help set the mood after the sun goes down, while the cozy loungers that can be found in the vicinity can be used for sunbathing or other leisure activities.
Have a look at the following images and admire the splendid Fuschia Villa for yourself!





















More Similar Articles Like This
6 Garden and Lawn Tips to Get Ready for Spring
Lawn Care Tips, The Basics For Each Season
Vibrant Concrete Floor Paint Colors to Elevate Your Space
Lovelli Residence: Mediterranean-Style Dwelling in Bali
Stunning Banyan Tree Ungasan Bali in Indonesia
Gorgeous And Spacious Home In Sunset Strip
Seamlessly Apartment by the Beach by ZZ Architects
Dreamy Oceanfront Chateau In West Vancouver, Canada