This modern home was built on a corner lot within a residential area in Guadalajara, Mexico. It was finished in 2014 and includes a spacious central court that connects the interior spaces and features openings in the walls that offer glimpses of the outdoors. The openings boast metal lattices as covers, which filter incoming sunlight and limit the views. Flaunting 8,342 square feet of living space, the IC House spreads on three levels and comprises a guest room as well as a state-of-the-art gymnasium, both of which open up to the central courtyard.
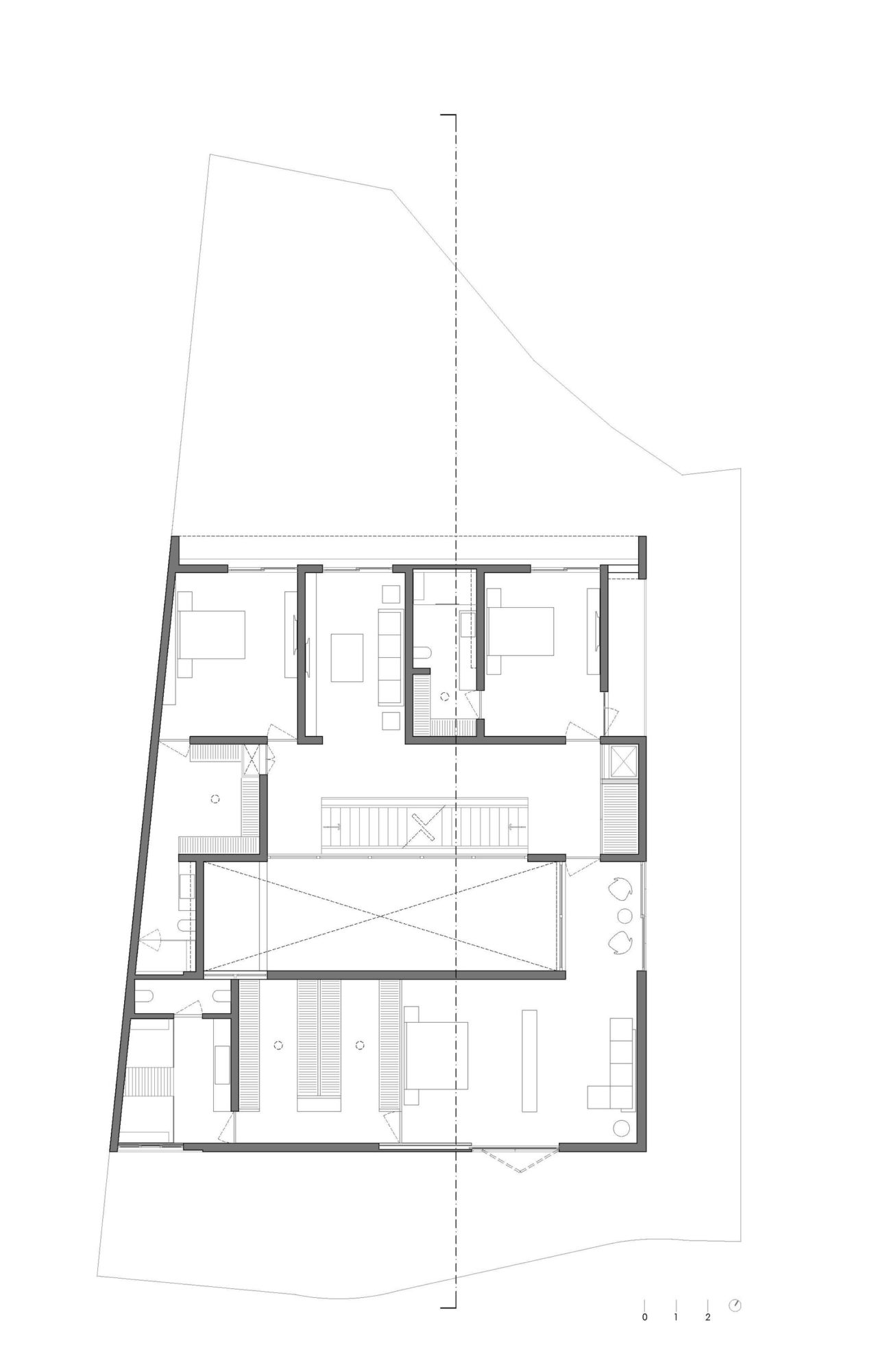
The access level is where the owners get to enjoy the public activities. The service spaces are accessed separately from the garage. The private living spaces were inserted upstairs. The bedrooms are separated by the space created by the courtyard. The master bedroom’s roof can be used as a viewing deck due to its elevated positioning and orientation.
The IC House was designed by Alexanderson Arquitectos.
From the architect:
The site is located on the edge of a ravine. It is a corner lot located in a residential subdivision in the area of Guadalajara. The site reflects the geography of the ravine, with steep slopes and an irregular geometry.
The project arises from the premise of creating a monolithic volume with the ability to open in full on one side and to remain closed in the other. The incorporation of a large central courtyard, besides linking the spaces, generates options for openings in the walls, and contextualizing the courtyard with the exterior.
These openings are covered with metal lattices that filter light and the views, thus enhancing the relation between exterior and interior.
The program is designed on 3 levels in a house of 775 m2. Harnessing the natural slope and the foundation of the house allows the basement to be fully open to the garden. It also houses a gym and guest room, both open to the central courtyard.
On the intermediate or access level are the rest of the public activities. The services have an independent access from the garage.
Upstairs are the private activities. The space generated by the courtyard serves as a separation between the bedrooms and reaffirms this gesture of transparency with the exterior. Taking advantage of the height of the house, the roof of the master bedroom serves as a viewing deck over the privileged view of the neighborhood.
Architects: Alexanderson Arquitectos
Location: Zapopan, Jal., Mexico
Project Architect: Pablo Alexanderson Silva
Project Area: 775.0 m2
Project Year: 2014
Photographs: Carlos Díaz Corona
Construction: Pablo Alexanderson Silva
Collaborators: José Luis Hernández, Jessica Magaña, Manuel Moreno, Agustín Cuevas, Gloria López, Luisa Fernanda Ruíz
Structural Engineering: Lucio López













More Similar Articles Like This
Saguaro Palm Springs by Joie de Vivre
Beach House CN – A Superb Contemporary Home in Peru
Stunning Banyan Tree Ungasan Bali in Indonesia
Shadowed Depths: Vintage-inspired Paint Colors for Dark Basements
Plain Geometric Residence Designed by Lidija Dragisic
Exceptional Coronado Bay Front Estate in California
Lawn Care Tips, The Basics For Each Season
How Seattle Lawn Care Service Deals With Overgrown Lawns