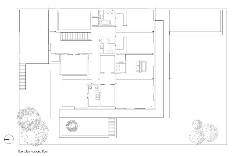
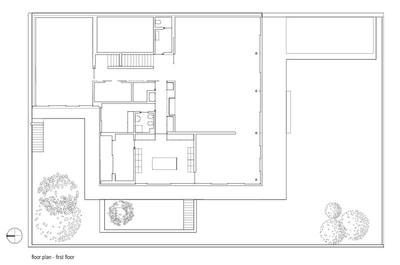
House in Foz Do Duro II is an impressive contemporary project by architect Jose Carlos Cruz. It is a private residence located in Porto, Portugal, on a hill between two other homes and two streets. The fundamental feature of this house is its transparency, which permits natural light to flood the interiors, while affording superb views towards the nearby river and platan trees.
While the part of the house that faces the street is discreet and modest, the opposite side is grand and completely open towards the surroundings. Here the large glass walls of the residence blur the boundaries between indoors and outdoors, inviting dwellers to enjoy both spaces every day.
Photos by: FG+SG – Fernando Guerra and Sergio Guerra






























More Similar Articles Like This
Unique Click Clack Hotel In Bogota, Colombia
Gayton Road Residence by Paxton Locher Studio
Vibrant Wood Tones: Explore a Spectrum of Spray Paint Colors!
Opulent Mandarin Oriental Hotel in Paris
Gorgeous And Spacious Home In Sunset Strip
The Superb Villa Verai on Phuket Island, Thailand
Contemporary BO House In Envigado, Antioquia, Colombia
Beach House CN – A Superb Contemporary Home in Peru