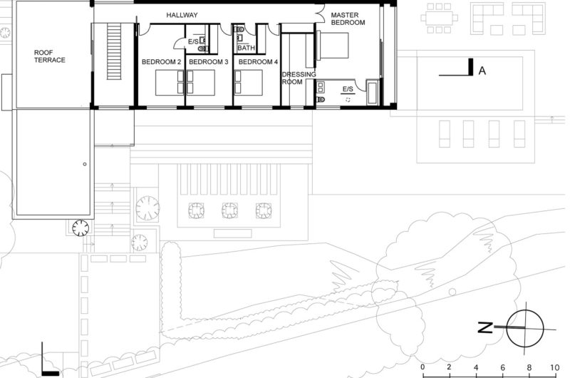
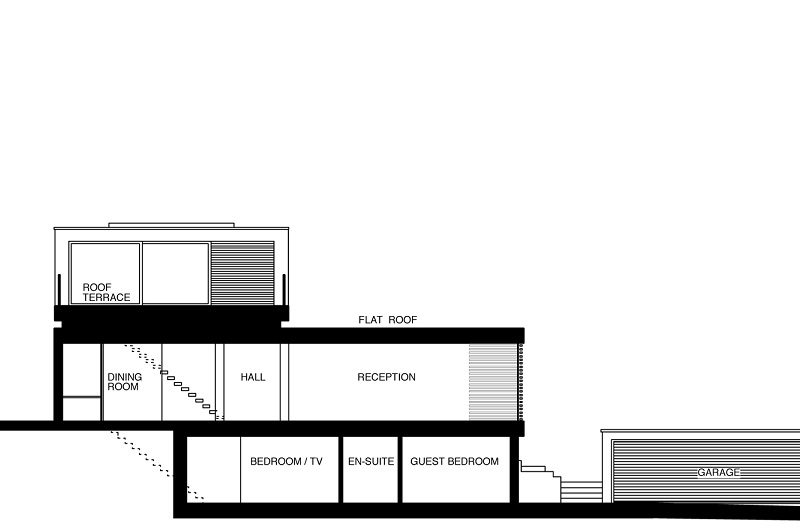
The White Lodge residence is a contemporary house of 480 m2, located in Tandridge, England, which was designed by Dyer Grimes Architects. The project consists in modern building technologies mixed with the highest quality materials such as white render and a type of glass which can be seen all over the place.
The ground floor living space is fully glazed while the first floor seems to hover over the kitchen area. 20% of the energy used in the house is produced with the help of renewable energy sources and through the use of solar hot water collectors installed on the roof, a drainage system and an air source heat pump that makes the air circulate all around the house.


















More Similar Articles Like This
The JKC1 House in Bukit Timah, Singapore
Gorgeous And Spacious Home In Sunset Strip
Lovelli Residence: Mediterranean-Style Dwelling in Bali
Marvelous Anantara Dhigu Resort
Secluded Naladhu Island in Maldives
Loving Luxury at Mardan Palace Resort, Turkey
10 Different Types of Blue Paint Colors
Beautiful Apartment in Stockholm for $1 Million