Located in Singapore, Faber Terrace is a modern home that was designed by HYLA Architects and was finished in 2014. It flaunts 4,025 square feet of living space and includes a beautiful outdoor terrace that is flanked by a garden. The side elevation of the residence features a slatted timber screen that allows natural light and air to pass through while ensuring much needed privacy.
The impressive entryway consists of a triple volume area that has cantilevered staircases on two sides. The living room is a double volume space and incorporates a bookshelf that rises up on two stories. The first level is a perfect place for socialization and relaxation as it boasts an open plan as well as sliding glass doors that blur the boundaries between the interior and exterior spaces.
From the architect:
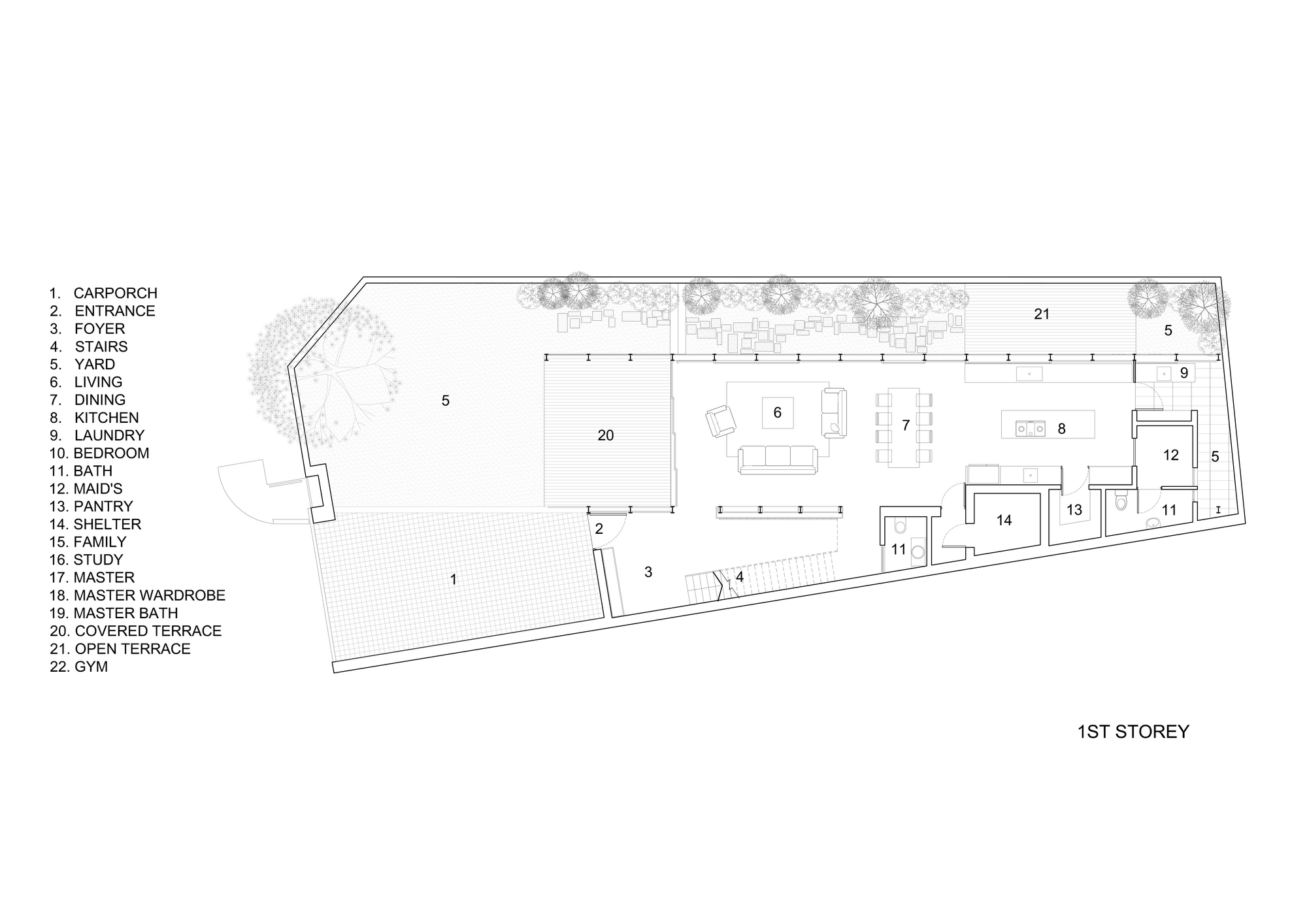
This terrace sits at a corner site and thus the full side of the house fronts the side street. To preserve the privacy but still allowing light and ventilation, a slatted timber screen covers the entire side elevation. At the front, an outdoor terrace with a high volume fronts the main garden.
The space continues into the double volume living room with a feature book shelf that extends two stories. The 1st storey has an open plan and large glass sliding doors open up to the lush side garden.
One enters the house into the triple volume space with the cantilevered stairs on both sides of the walls.
Main Contractor: V-Tech Construction Pte Ltd
Structural Engineer: Tenwit Consultants Pte Ltd
Site Area: 323 m2
Principal Architect: Mr. Han Loke Kwang
Assistant Architects: Domenic Daniel, Charissa Chan
Area: 374.0 sqm
Year: 2014
Photographs: Derek Swalwell


















More Similar Articles Like This
Boracay Resort & Spa in the Fascinating Philippines
The Sophisticated Casa Villa Flamingo in Spain
Astonishing El Tovar by the Sea
Exploring the New World of Luxury Hoteling
70 Shades of Green: Benjamin Moore’s Vibrant Paint Colors
Spectacular Rooftop Apartment by Innocad
Exceptional Coronado Bay Front Estate in California
Opulent Mandarin Oriental Hotel in Paris