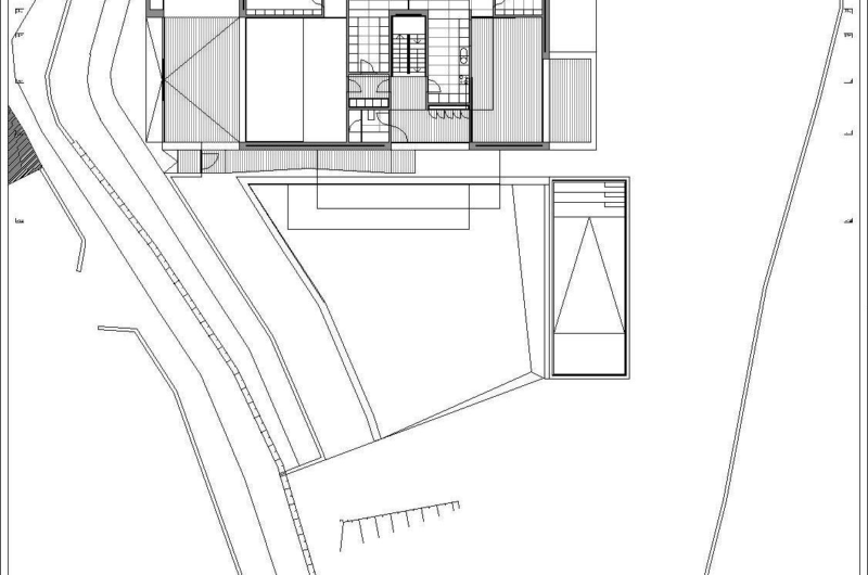
The House in Travanca designed by Nelson Resende and located in Santa Maria da Feira, Portugal was built in an irregular area in a rural village.
The house consists of three levels of which two of them have a visual and physical relationship with the exterior.
The access is made through the middle level both by foot and by car because it has direct connection with the patio and the garage.
The inferior level is a more restricted area that allows a more expansive approach. The upper level provides views of the surroundings and creates a connection between the indoor and the outdoor spaces.
The house creates a tranquil and old atmosphere without being old though.
Photos by FG+SG























More Similar Articles Like This
70 Shades of Green: Benjamin Moore’s Vibrant Paint Colors
Gorgeous And Spacious Home In Sunset Strip
10 Different Types of Blue Paint Colors
Plain Geometric Residence Designed by Lidija Dragisic
Shadowed Depths: Vintage-inspired Paint Colors for Dark Basements
Superb Luxury Penthouse in Portomaso, Malta
A Superb Italianate Mansion in California, USA
Beautiful Apartment in Stockholm for $1 Million