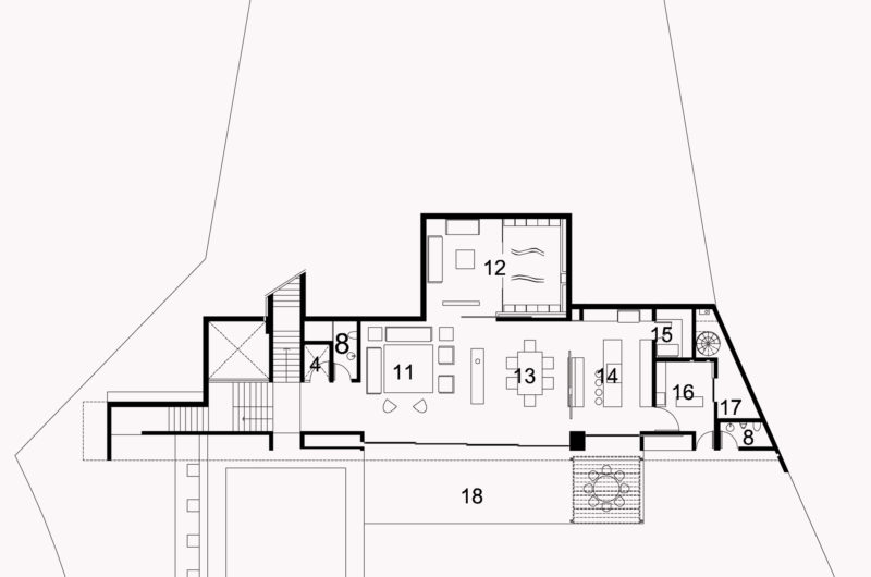
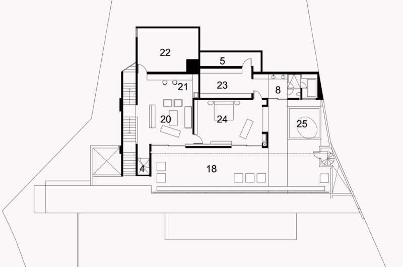
The Mountain House is a stunning mountain home in Santa Anita Golf Club of Tlajomulco in Jalisco, Mexico that was designed by Agraz Arquitectos.
Its generous space area is in contradiction with the street front that is barely 12 meters wide. It consists of four levels as it follows: the first one for the cars, the next level for the social area, the third level for the master bedroom next to the family room and the fourth one for the kids’ bedrooms.
The wine cellar, which is one of the family’s most precious places, is set in the center of the house.
























More Similar Articles Like This
Santa Barbara Style Home in Paradise Valley, Phoenix
Behr’s Brilliant Blues: 70 Shades of Stunning Paint Colors
Loving Luxury at Mardan Palace Resort, Turkey
Beautiful Apartment in Stockholm for $1 Million
Different Types Of Foundations For Summer Houses and Garden Buildings
Beach House CN – A Superb Contemporary Home in Peru
Shadowed Depths: Vintage-inspired Paint Colors for Dark Basements
Vibrant Concrete Floor Paint Colors to Elevate Your Space