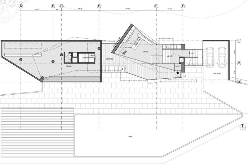
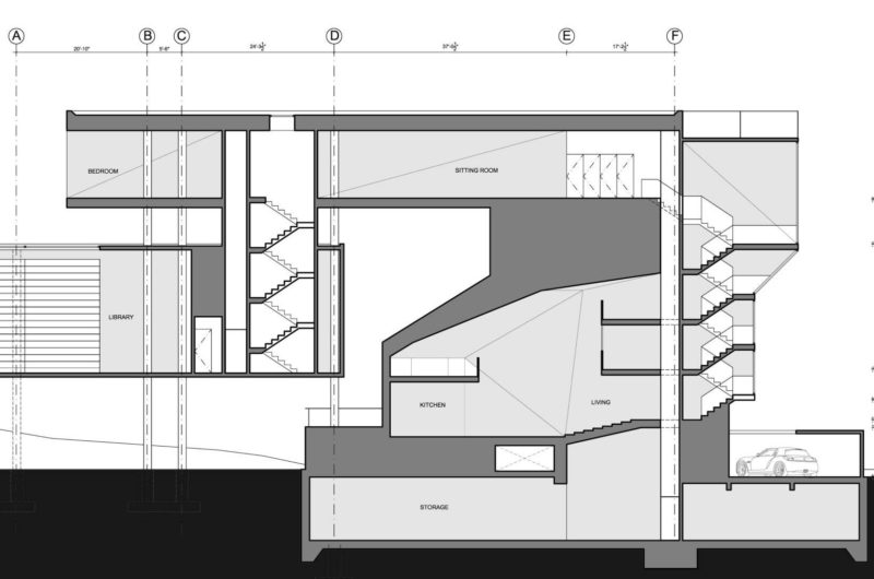
Aviator’s Villa is a project developed by the New York City-based studio Urban Office Architecture for a retired pilot. This loft-life residence is located near a lake in Duchess County, New York, USA and is organized as an analogical continuum of disassembled flight components.
As a plane steers and points through currents, this house turns and torques to face the sky, the surrounding views and the waters, in order to offer the owner the best from everything there is.
The entire house is flooded by natural light due to the large open glazed panes mounted on riveted metal frames.
The architectural morphology of the house can be described as expressive but simple, allowing the owner to follow a disciplined and timed journey through his home.














More Similar Articles Like This
Loving Luxury at Mardan Palace Resort, Turkey
Spectacular Luxury House in Sarasota, Florida by DSDG Inc. Architects
Vibrant Concrete Floor Paint Colors to Elevate Your Space
10 Different Types of Blue Paint Colors
The Superb Maradiva Villas Resort & Spa in Mauritius
Plain Geometric Residence Designed by Lidija Dragisic
Unique Click Clack Hotel In Bogota, Colombia
Boracay Resort & Spa in the Fascinating Philippines