The Suburban Beach House is a residence designed by David Barr & Ross Brewin for a young couple and their future family. It is located in Perth, Australia and is a combination between West-Australian beach shack and the climatic advantages of a Queenslander.
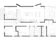
The house is divided into day and night areas which are separated by a corridor that is widened at one end to create space for a study nook.
The windows facing west were minimized in order to protect the house from the scorching sun in the afternoon. Panoramic views over the Indian Ocean can be accessed from the north-west oriented outdoor room. A small place hidden under the building at the rear, offers space that can be transformed into a 4th bedroom, a back-yard pavilion, a home office or even into a games room.
This is an atypical home that is small, lifted above the ground, with no front door, no garage and no fence, just a beach house in the suburbs.





















More Similar Articles Like This
Different Types Of Foundations For Summer Houses and Garden Buildings
6 Garden and Lawn Tips to Get Ready for Spring
Saguaro Palm Springs by Joie de Vivre
Vibrant Wood Tones: Explore a Spectrum of Spray Paint Colors!
Amazing Four Seasons Resort Bora Bora
Plain Geometric Residence Designed by Lidija Dragisic
Pure Perfection: Discover the Top White Paint Colors for a Flawless Décor
Lawn Care Tips, The Basics For Each Season