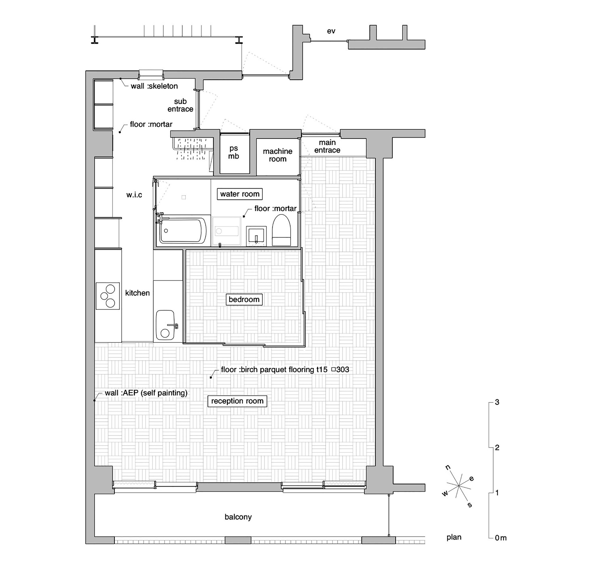
Tsukiji Room H is a small 505-square foot home that was designed by a team of architects from Yuichi Yoshida & associates under the guidance of Yuichi Yoshida and Satoru Ando. The residence is located in Tokyo, Japan, and it was originally used as an office. The architects unified its two rooms and created a cozy and comfortable living environment that features modern amenities and appliances as well as decent-sized windows.
The main living area includes a bed as well as a table with seating for four and a hammock. The ceiling boasts a rough industrial appearance that’s balanced by wooden floors. The kitchen features contemporary appliances, and even though it’s not necessarily spacious, it can be used to prepare delicious meals without much effort. Tsukiji Room H also comprises a storage area that houses luggage, shoes and other miscellaneous items.
From the architect:
Originally purchased the two rooms in the building is made by assuming an office use, is renovation to live as a single residence. While ensuring the function minimum necessary to life from the client, there was that we wanted to take as large as possible where you can do anything to the external side. In addition, it was also the assumption that she moved in rent or resale After you have about 5 to 10 years to another.
There are roughly to collectively plan to go act the space of similar character (function or room) there called “zoning” in the building plan.
Usually after zoning, but will continue to further subdivided by increasing the magnification to see the zone, where it reduces the reverse in magnification, usually without as much as possible Majikiriru a function to each other, such as not adjacent to each other so much by looking more broadly by making parallel coexist compact, has created a great place to do anything.
It has resulted from the so space, not only as a residence, has the will will strength that can be used also as SOHO also as an office, was also to be possible to increase the resale value (resale value) in this region.
Architects: Yuichi Yoshida & associates
Location: Tokyo, Japan
Architects in Charge: Yuichi Yoshida, Satoru Ando
Produce: Suma-Saga-Fudosan Inc.
Area: 47.0 sqm
Project Year: 2014
Photographs: Katsumi Hirabayashi













More Similar Articles Like This
These Top Tips Will Help You to Turn Your Garden into the Ultimate Glamping Site!
Marvelous Anantara Dhigu Resort
Gorgeous And Spacious Home In Sunset Strip
Unique Click Clack Hotel In Bogota, Colombia
Benjamin Moore Exterior Paint: Vibrant Shades for a Striking Home
Stunning Banyan Tree Ungasan Bali in Indonesia
Plain Geometric Residence Designed by Lidija Dragisic
The Sophisticated Casa Villa Flamingo in Spain