The renovation project for the Maranhão Apartment was completed by experts from FC Studio, who made sure that it would become a fine example of contemporary design, fine taste and comfort. Located in São Paulo, Brazil, the apartment used to be inhabited by a family, but it was purchased by a single owner, which meant that it had to be remodeled appropriately.
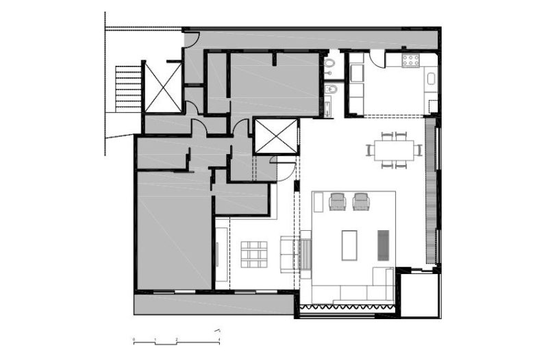
The renovation project kept some of the old design elements but also included the implementation of new ones, especially when it comes to kitchen, TV room and living room, since they were all merged into a single space.
The private and the social areas are divided efficiently by a large Corten steel gallery that masks a pivoting door. The materials that were used to build the apartment in the first place were exposed boldly. This way, the steel, glass and concrete elements give off a rather cold allure that is balanced by the natural, welcoming appearance of wooden furniture pieces.
From the FC Studio:
The biggest challenge was the conversion of a family apartment compartmented into an apartment for a young single advertiser, and retrofitting existing securities repaginating brought from other apartment. The meticulous work respected the memories impregnated in certain parts and introduced new elements from the new intentions. The living room, tv room and kitchen have become part of a single space through the demolition of walls and removal of the toilet. Shelves specifically emphasize the horizontality of the space and serve as a shield for design pieces. A large gallery Corten steel is the element delimiter between social and intimate, camouflaging access that is done through a pivoting door. The original structure was exposed and the materials are shown with sincerity. The concrete, glass and steel corten combine a sober color palette and contrast with some pieces that give identity to the flexible space.













More Similar Articles Like This
The JKC1 House in Bukit Timah, Singapore
Shadowed Depths: Vintage-inspired Paint Colors for Dark Basements
Outstanding Bodrum Houses in Yalikavak, Turkey
Vibrant Wood Tones: Explore a Spectrum of Spray Paint Colors!
Secluded Naladhu Island in Maldives
6 Garden and Lawn Tips to Get Ready for Spring
Best paint colors for the living room
Gorgeous And Spacious Home In Sunset Strip