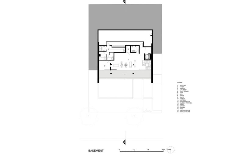
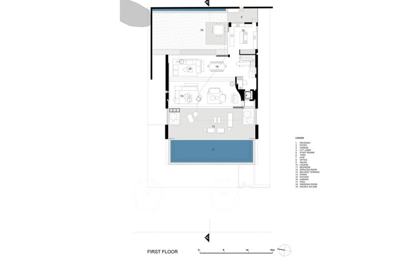
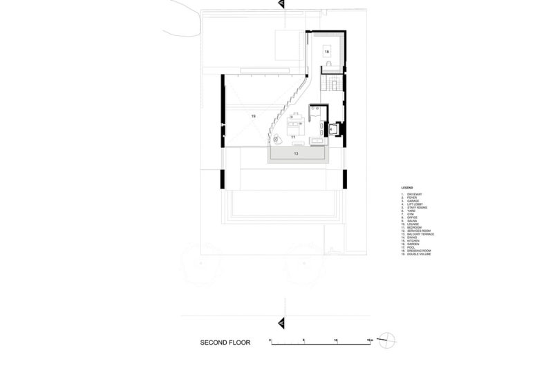
Located in Clifton, Cape Town, South Africa, this magnificent residence is a stunning project signed Stefan Antoni Olmesdahl Truen Architects and OKHA Interiors , architecture and interior design practices in Cape Town. Flaunting breathtaking interiors, the residence is called the Nettleton 199 house.
The owner wanted a home that would offer unobstructed views of the sea, and minimized views of the neighboring buildings. The garden plays a major role in this project, as it ensures a natural connection with the mountain at the back of the house, while also blocking the view towards the other buildings.
The crisp white walls that mold the interior volumes act like clean canvases for the beautiful works of art that decorate the home. There is a perfect harmony between the architecture of the residence and its superb interior decors. To further emphasize this connection, the huge windows and glass sliding doors can be opened at any time, allowing a seamless transition from inside to the lovely outside areas.
Photos by: Adam Letch



























More Similar Articles Like This
Secluded Naladhu Island in Maldives
Amazing Four Seasons Resort Bora Bora
How Seattle Lawn Care Service Deals With Overgrown Lawns
Spectacular Rooftop Apartment by Innocad
Best paint colors for the living room
Pure Perfection: Discover the Top White Paint Colors for a Flawless Décor
Stunning Sustainable Home in Costa Rica by SPG Architects
Gayton Road Residence by Paxton Locher Studio